Studio Programs

icon picker
Section 4: Integrating the Structure and the Services (+ Landscape)

Task:

Individually, carry on the design process for the Flood Resilient Centre through a series of circle studies, group discussions and consultations with tutors. In this section the expected level is LOD 300-350.
Students are required to develop further the outcomes of their section 3 according to the feedback given during Interim Crit 1.
The utilisation of conceptual boards, diagrams and themes are still very much encouraged in this phase and the final products are supposed to be almost to a final presentation drawing quality.

Section 4: Objective Key Results 4
Segment
Objectives
Key Results
Stretched KRs
CLOs
Site Plan and Circulation Planning
To develop a site plan and circulation planning that shows how the design setting, circulation and context of building.
Site Plan ()
Ground Floor Plan on the Site Plan (LOD 200)
Carpark and Circulation Layout (LOD 200)
3D model of the buildings on site
Finalised Floor Plans and Section with legends to show building program
To develop a set of floor plans that shows the layout of the buildings that shows integration between department, circulation, building services and structure.
Site Plan (LOD 300)
Ground Floor Plan on the Site Plan (LOD 300)
Carpark and Circulation Layout (LOD 300).
Sections with at least the spaces with openings sizes and positions (LOD 200)
3D Model exploded axonometric to show the vertical integration of the services and circulation
Callout floor plans for each accomodation type
To develop callout floor plan for each accomodation types with space arrangement, openings and furnitures.
Callout floor plans for each accomodation type (LOD 200)
3D Model or Interior perspectives for each accomodation type
Sectional Model of the typical structure, services and facade finishes
To develop a typical construction system for the building with integration with the structure and services
Typical sectional model (LOD 350); at least in 1:50 scale
Physical model of the typical section at least for 1 bay of the building
No results from filter

Section 4: Activity Plan

Week
Session
Activity/Program
Products
LOD
8
Tue, Aug 29, 2023
Integrating the Structure and the Services (LOD 300):
Briefing on Section 4
Circle Study
Exit Class Feedback
Detailing of drawings Completing of drawings set Residential Rooms Layout Callout
Fri, Sep 1, 2023
Integrating the Structure and the Services:
Input Lecture: Sustainable Strategies Design by Rizal Husin
Sustainable Strategies Features
Circle Study
Exit Class Feedback
Detailing of drawings Braise Soleil + Elevations Design Completing of drawings set Residential Rooms Layout Callout
9
Tue, Sep 5, 2023
Design Development 3 (LOD 350):
Input Lecture: Services Plan and Landscape Installation in/on Building by Ar.Rizal Zakaria
Technical Drawings and Detailing
Circle Study
Exit Class Feedback
Detail drawings + 3 bays model selection Completed of drawings set Elevations + Sections Completed Residential Rooms Layout Callout
Fri, Sep 8, 2023
Design Development 4 (LOD 300-350):
Circle Study
Exit Class Feedback
sectional model and detailing mockup (LOD 350) Completed of drawings set (LOD 350) Residential Rooms Layout Callout (LOD 350)
10
Tue, Sep 12, 2023
Design Development 4 (LOD 300-350):
Circle Study
Exit Class Feedback
Finalising Design and Compilation of all works Rendering and Virtual Presentation
Fri, Sep 15, 2023
Design Development 4 (LOD 300-350):
Circle Study
Exit Class Feedback
Finalising Design and Compilation of all works Rendering and Virtual Presentation
11
Tue, Sep 19, 2023
Submission 4: Interim Crit 2
Feedback on Presentation
Compilation of all works Virtual Presentation Verbal Presentation
Note: The calendar has been adjusted to allows Malaysian Day Celebration at IUKL. The Interim Crit 2 was originally on 15th September 2023 yet postponed to 19th September 2023.

Submissions

Sample of Expected Products

3D Section Detail Model


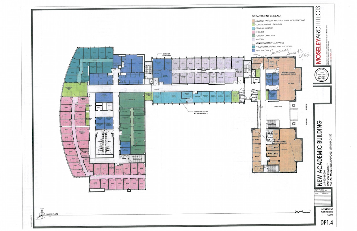
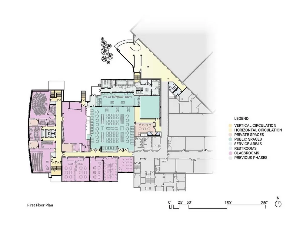
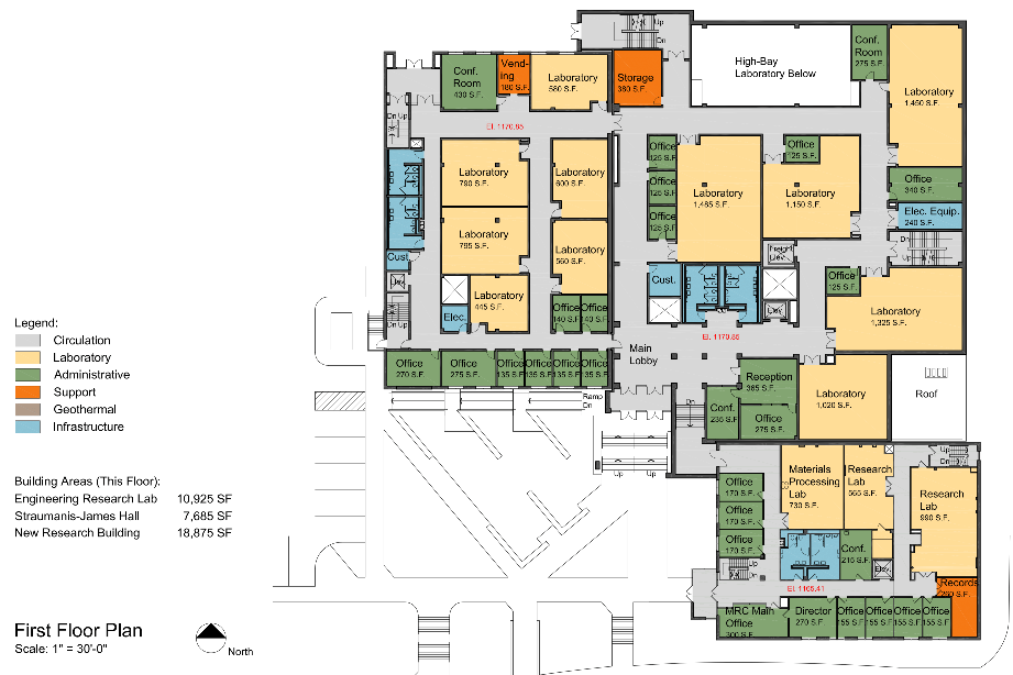
Floor Plan with Department Legend

image.png

image.png
image.png
image.png

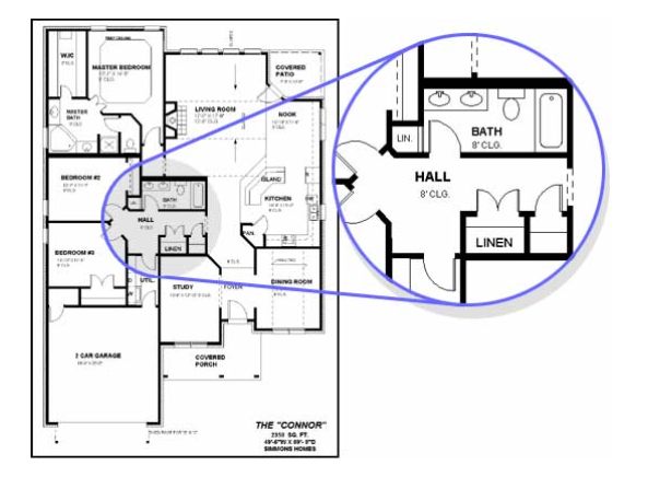
Callout Plans

image.png
image.png
image.png


Want to print your doc?
This is not the way.
Try clicking the ⋯ next to your doc name or using a keyboard shortcut (
CtrlP
) instead.