Skip to content

Section 4: Integrating the Structure and the Services (+ Landscape)

Task:

Individually, carry on the design process for the Putrajaya Halfway House through a series of circle studies, group discussions and consultations with tutors. In this section the expected level is LOD 300-350.
Students are required to develop further the outcomes of their section 3 according to the feedback given during Interim Crit 1.
The utilisation of conceptual boards, diagrams and themes are still very much encouraged in this phase and the final products are supposed to be almost to a final presentation drawing quality.

Section 4: Objective Key Results 4
Segment
Objectives
Key Results
Stretched KRs
Canvas
Finalised Floor Plans and Section with legends to show building program
To develop a set of floor plans that shows the layout of the buildings that shows integration between department, circulation, building services and structure.
Site Plan (LOD 300)
Ground Floor Plan on the Site Plan (LOD 300)
Carpark and Circulation Layout (LOD 300).
Sections with at least the spaces with openings sizes and positions (LOD 200)
3D Model exploded axonometric to show the vertical integration of the services and circulation
Open
Callout floor plans for each accomodation type
To develop callout floor plan for each accomodation types with space arrangement, openings and furnitures.
Callout floor plans for each accomodation type (LOD 200)
3D Model or Interior perspectives for each accomodation type
Open
Sectional Model of the typical structure, services and facade finishes
To develop a typical construction system for the building with integration with the structure and services
Typical sectional model (LOD 350); at least in 1:50 scale
Physical model of the typical section at least for 1 bay of the building
Open
No results from filter

Section 4: Activity Plan

Week
Session
Activity/Program
Products
LOD
7
Fri, Dec 23, 2022
Submission 3: Interim Crit 1
Building Design (LOD 200): End
Integrating the Structure and the Services (LOD 300): Start
Individual Portfolio Webpage/CODA Finalised Site Plan + Ground Floor Plan/Sections Upper Floor Plans + Basement Integration Mass + Architectural Configuration
8
Tue, Dec 27, 2022
Integrating the Structure and the Services (LOD 300):
Input Lecture: Fire Safety Requirements by Ar Kamal
Integration Structure and Services
Fire Safety Requirements
Circle Study
Exit Class Feedback
Detailing of drawings Completing of drawings set Residential Rooms Layout Callout
Fri, Dec 30, 2022
Integrating the Structure and the Services:
Input Lecture: Sustainable Strategies Design by Rizal Husin
Sustainable Strategies Features
Circle Study
Exit Class Feedback
Detailing of drawings Braise Soleil + Elevations Design Completing of drawings set Residential Rooms Layout Callout
9
Tue, Jan 3, 2023
Design Development 3 (LOD 350):
Input Lecture: Services Plan and Landscape Installation in/on Building by Ar.Rizal Zakaria
Technical Drawings and Detailing
Circle Study
Exit Class Feedback
Detail drawings + 3 bays model selection Completed of drawings set Elevations + Sections Completed Residential Rooms Layout Callout
Fri, Jan 6, 2023
Design Development 4 (LOD 300-350):
Circle Study
Exit Class Feedback
sectional model and detailing mockup (LOD 350) Completed of drawings set (LOD 350) Residential Rooms Layout Callout (LOD 350)
10
Tue, Jan 10, 2023
Design Development 4 (LOD 300-350):
Circle Study
Exit Class Feedback
Finalising Design and Compilation of all works Rendering and Virtual Presentation
Fri, Jan 13, 2023
Submission 4: Interim Crit 2
Feedback on Presentation
Compilation of all works Virtual Presentation Verbal Presentation
Circle Study Group 2

Submissions

Sample of Expected Products

3D Section Detail Model


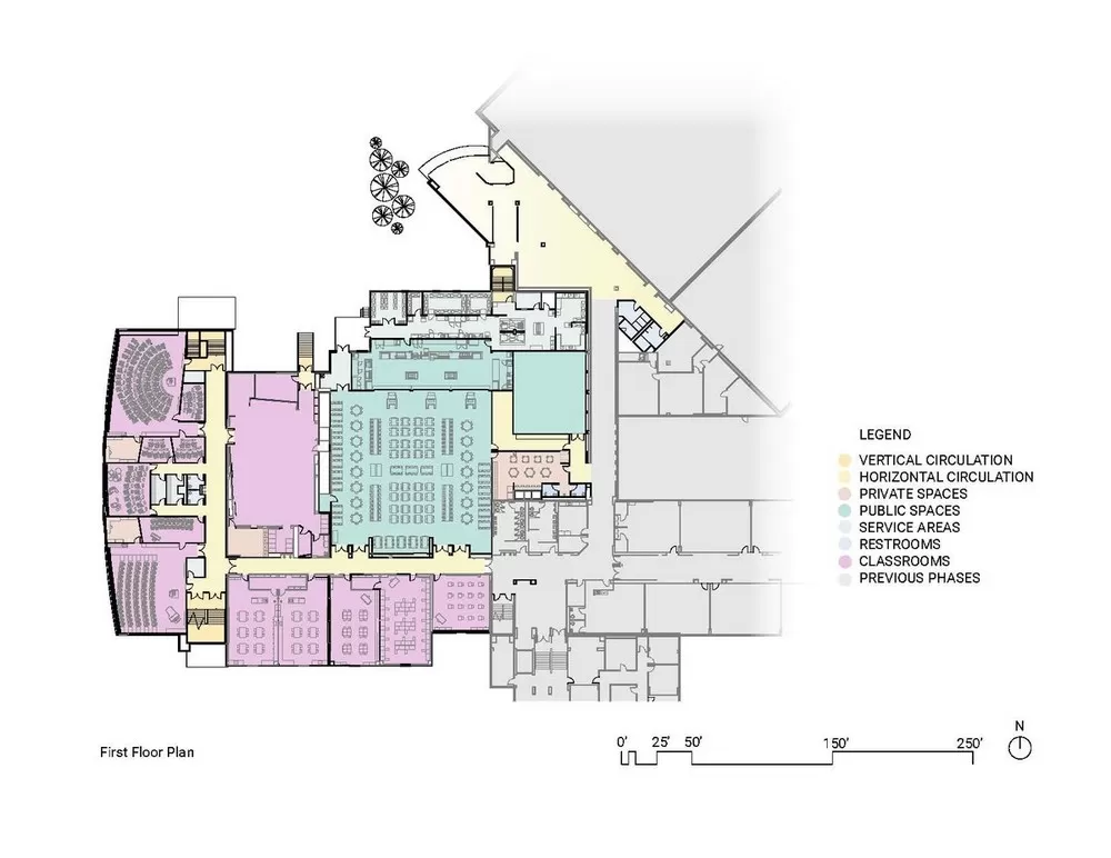
Floor Plan with Department Legend

image.png
image.png
image.png
image.png

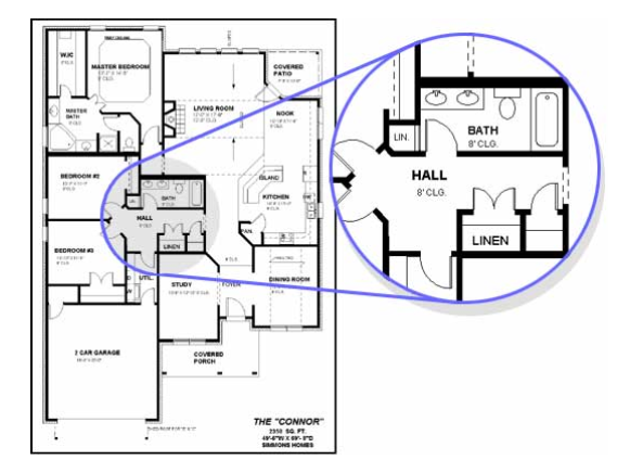
Callout Plans

image.png
image.png
image.png


Want to print your doc?
This is not the way.
Try clicking the ··· in the right corner or using a keyboard shortcut (
CtrlP
) instead.