Skip to content

Design Process

Below is the design process for your outdoor design.
We offer this proposal, including all original concepts and designs, with the agreement that you will not share them publicly, on social media, or with outside contractors without the permission of Pratt Guys. We do encourage you to share the site internally with your family and friends and build excitement for your project!

Design Waivers

Scope of Work Waiver: The design presented is conceptual in nature and does not define the final scope of work. Refer to your approved invoice on Buildertrend for a complete and accurate description of your included scope of work. Features or elements depicted in the design that are not specifically included in the approved invoice are not part of the contracted scope, regardless of their appearance in renderings or drawings.
Color and Selection Waiver: The drawings' materials and colors are for conceptual purposes only and may not represent your final selections. The Material and Color Selection Finalization Form takes priority over any shown materials or colors. Please note that actual colors may vary from what is seen on monitors or when printed.
Landscape Waiver: Any landscaping depicted on renderings is for conceptual purposes only. Landscape plan will verify specific plant species and sizes.
Survey Waiver: The design presented is based on the survey information provided by the client. Tree locations, topography, and other site-specific details are subject to verification and may require adjustments to ensure accuracy in implementation. Any discrepancies in the survey data could impact final design elements.
Special Features Waiver: Depictions of special features such as water and fire features are for conceptual purposes only. The velocity and volume of the water or fire will vary.
Engineering Waiver: Structural elements depicted on renderings are for conceptual purposes only. Engineering takes precedence over the size, location, and products used for structural masonry, wood framing, roofing, floors, etc.

Feasibility Study

Zone Type: Open Rural
Primary/Attached Structure Setbacks
Front — 25'
Sides — 10'
Rear — 10'
Max Height for Primary/Attached Structures
35'
Accessory Structure Setbacks
Sides — 5'
Rear — 5'
Max Height for Accessory Structures
Same as the house, and cannot be greater than the house nor can the eave height of the accessory be greater than the eave height of the house
Max Lot Coverage by Buildings with Solid Roofs
35 percent
Max Impervious Surface Ratio
70 percent
Paver setbacks
3' from side and rear property lines

Survey

Pirris site survey .jpg

ARCHIVE

Last Updated on 10-03-25

Renderings

Click Link Below to View Photo Gallery

Key Design Elements:

(13’) Belgard Block Kitchen
Castle Manor (Slate)
Granite Counters and Granite Backsplash (62 sq ft)
Level 1 - 1 Slab (Fantasy Brown Leathered)
Appliances:
Delta Heat 32" Gas Grill w/ Rotisserie
Delta Heat 18" Griddle Plate for Grill
Delta Heat 32" Vinyl Cover for Built-In Grill
Delta Heat 30" Door & Two Drawer Combo
Custom Granite Backsplash - 5’-10” x 2’-11”(Fantasy Brown Leathered)
Delta Heat 18" Double Tall Trash Drawer
True 24" Refrigerator (Glass or SS Door)
(10') Belgard Block Kitchen (Floating Bar)
Castle Manor (Slate) Wall Block Columns (2)
Granite Counters (32 sq ft)
Level 1 - 1 Slab (Fantasy Brown Leathered)
Belgard Block Fire Pit
Gas
Castle Manor (Slate)
55" Round
Tiki Torches
(2) Natural gas or LP gas Everglow Flower Torches
Paver Patio (Firepit Seating Area)
Belgard Block Retaining Wall & Border (42 sq ft)
4" Crushed Concrete Base
Castle Manor Wall Block (Slate)
Castle Manor Caps (Slate)
Pavers (115 sq ft)
*PAVERS TO MATCH EXISTING POOL DECK PAVERS. VERIFY IF EXISTING PAVERS ARE TREMRON MEGA OLDE TOWNE GLACIER
Crushed Granite & Steppers
Path from Screen Door to Firepit/Seating Area
Crushed Granite & Steppers (137 sq ft)
Colorado River Jacks
Compacted 57 stone, Filter Cloth, Brown Aluminum Edging Edging
Mountain Mist Flagstone Steppers (72 sq ft)
Low Voltage Lighting
(8) Low Voltage LED Under Cap Lights on outdoor kitchen
(5) AMP SummitPro path & area lights along the path to the firepit
(3) Puck lights under the floating bar
(11) VOLT Ultra Premium Cast Brass Up-Down Sconce Lights on Existing Screen Enclosure and Trellis
110 Electric
(4) Proposed 1 gang outlets on outdoor kitchen backsplash (2) and floating bar (2)
(1) Existing 1 gang outlet relocated from the proposed custom backsplash location to inside of the block kitchen behind the grill
(1) Existing outlet to remain inside in the block kitchen
Fixtures
(1) Minka-Aire Xtreme H2O 65” Fan (Smoked Iron) to replace existing fan on back porch
(2) Minka-Aire Anywhere 15” Diameter 3 Speed Indoor/Outdoor Wall Mount Fans (Black)
Dog Door
9” x 12” Opening (under 40lb Dog)
Next to screen door on North Side of Screen Enclosure
Florida Glass
Above the outdoor kitchen
Above the Seating Area North West of Pool Deck
Paver Landings
At screen doors
10 Sq ft and 14 sq ft (24 sq ft total )
*PAVERS TO MATCH EXISTING POOL DECK PAVERS. VERIFY IF EXISTING PAVERS ARE TREMRON MEGA OLDE TOWNE GLACIER
Trellis Structure
(4) 6” x 6” Posts -Marine Grade, Rough Sawn, Pressure Treated Timber Posts (moisture, wet ground), Burnt Hickory Stain
(6) 2” x 10” Cedar Beams - Burnt Hickory Stain
(22) 2” x 8” Cedar Rafters - Burnt Hickory Stain
(18) 2” x 2” Cedar Purlins - Burnt Hickory Stain
Swings
(3) Polywood 48” Bench Swings - Sand (TO MATCH EXISTING ADIRONDACK CHAIRS (VERIFY)
48” MODEL SELECTION TBD
Stainless steel chains and hardware
Landscaping
Around Screen Enclosure and back foundation
Firepit Seating Area

Overview

Pirris_OVERVIEW.jpg

Low Voltage Lighting

Pirris_LOW VOLTAGE.jpg

110 Electrical

Pirris_110 ELECTRICAL.jpg

Kitchen

Pirris_KITCHEN.jpg

Trellis and Patio

Pirris_TRELLIS AND PATIO.jpg

Last Updated on 9-29-25

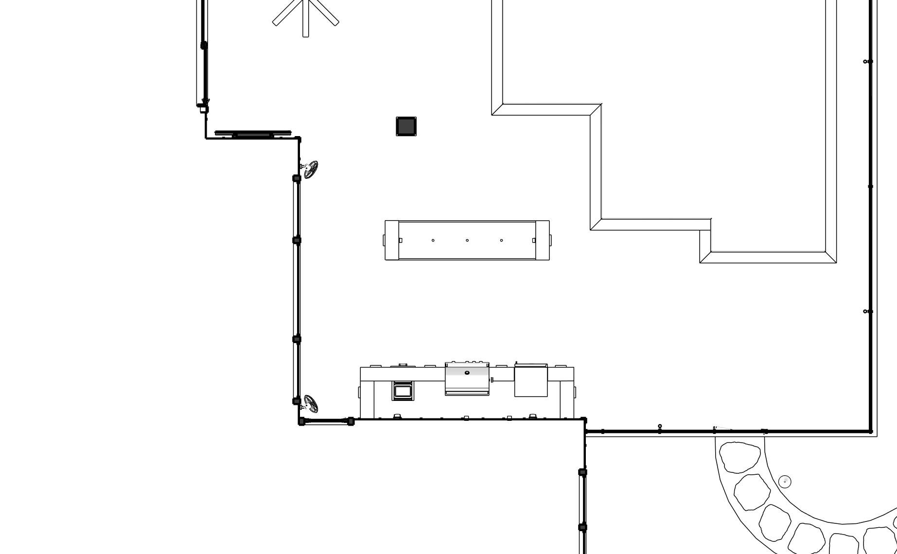
Project Overview

The overall goal is to add an outdoor kitchen to the existing screened in patio and to add a fire pit with a seating area in the back yard with a stepping stone path leading to it.
The existing artificial turf area and fence around it will be demolished and replaced with sod.
Plan View.jpg

Key Design Elements:

(13’) Belgard Block Kitchen
Gray Castle Manor, Easton, or Weston Wall Block
Granite Counters (44 sq ft)
Level 1 - 1 Slab
Appliances
Delta Heat 32" Gas Grill w/ Rotisserie
Delta Heat 18" Griddle Plate for Grill
Delta Heat 32" Vinyl Cover for Built-In Grill
Delta Heat 30" Door & Two Drawer Combo
Custom 3' x 5’-10” Granite Backsplash (62 sq ft)
Delta Heat 18" Double Tall Trash Drawer
True 24" Refrigerator (Glass or SS Door)
(10') Belgard Block Kitchen (Floating Bar)
Gray Castle Manor, Easton, or Weston Wall Block Columns (2)
Granite Counters (32 sq ft)
Level 1 - 1 Slab
Belgard Block Fire Pit
Gray Easton or Weston Wall Block
55" Round
Metal Insert w/ Grill Grate
Tiki Torches
(2) Natural gas or LP gas Everglow Flower Torches by firepit seating area
Patio Retaining Wall/Border (Around Fire Pit)
Belgard Block Retaining Wall & Border (42 sq ft)
4" Crushed Concrete Base
Castle Manor, Easton, or Weston Wall Block
Castle Manor Caps
Pavers (115 sq ft)
Crushed Granite & Steppers
Path from Screen Door to Firepit/Seating Area
Crushed Granite & Steppers (137 sq ft)
3/8" Gray Granite (317 sqft @ 6" D)
PA Garden Steppers (72 sqft)
Low Voltage Lighting
(8) Low Voltage LED Under Cap Lights on outdoor kitchen
(5) VOLT Max Spread path & area lights along the path to the firepit
(3) Puck lights under the floating bar
(11) VOLT Ultra Premium Cast Brass Up-Down Sconce Lights on Latticed Trellis
110 Electric
(6) 1 Gang outlets on outdoor kitchen and floating bar
Fixtures
(1) Minka-Aire Xtreme H2O 65” Fan to replace existing fan on back porch
(2) Minka-Aire Anywhere 15” Diameter 3 Speed Indoor/Outdoor Wall Mount Fans on back porch (near outdoor kitchen, on corners of windows)
Dog Door
9” x 12” Opening (under 40lb Dog)
Next to screen door on North Side of Screen Enclosure
Florida Glass
(7) Panels above the outdoor kitchen
Latticed Trellis by Firepit
(4) 6” x 6” Posts
(6) 2” x 10” Beams
(22) 2” x 8” Rafters
(18) 2” x 2” Purlins
2” x 2” Trellis
Landscaping
Around Screen Enclosure
Around Firepit Seating Area

Plans

Plan Kitchen.jpg
Plan Firepit.jpg
Lighting and Electric.jpg
Kitchen Lighting and Electric.jpg
Firepit Lighting and Electric.jpg

Elevations/Sections

Elevation 3.jpg
Section 1.jpg
Section 2.jpg
Section Kitchen.jpg

Renderings

Click Link Below to View Photo Gallery

Last Updated on 9-21-25

Project Overview

The overall goal is to add an outdoor kitchen to the existing screened in patio and to add a fire pit with a seating area in the back yard with a stepping stone path leading to it.
The existing artificial turf area and fence around it will be demolished and replaced with sod.
PLAN VIEW.jpg

Key Design Elements:

(14’) Belgard Block Kitchen
Gray Castle Manor, Easton, or Weston Wall Block
Granite Counters (42 sq ft)
Level 1 - 1 Slab
Appliances
Delta Heat 32" Gas Grill w/ Rotisserie
Delta Heat 18" Griddle Plate for Grill
Delta Heat 32" Vinyl Cover for Built-In Grill
Delta Heat 30" Door & Two Drawer Combo
Custom 3' x 3' Stainless Steel Backsplash
Delta Heat 18" Double Tall Trash Drawer
True 24" Refrigerator (Glass or SS Door)
(10') Belgard Block Kitchen (Floating Bar)
Gray Castle Manor, Easton, or Weston Wall Block Columns (2)
Granite Counters (20 sq ft)
Level 1 - 1 Slab
Belgard Block Fire Pit
Gray Easton or Weston Wall Block
55" Round
Metal Insert w/ Grill Grate
Seating Wall/Border (Around Fire Pit)
Belgard Block Seating Wall & Border (88 sq ft)
4" Crushed Concrete Base
Castle Manor, Easton, or Weston Wall Block
Castle Manor Caps
Crushed Granite & Steppers
Path from Screen Door to Firepit/Seating Area
Crushed Granite & Steppers (60 sq ft)
3/8" Gray Granite (317 sqft @ 6" D)
PA Garden Steppers (60 sqft)
Low Voltage Lighting
(12) Low Voltage LED Under Cap Lights on outdoor kitchen and firepit seating area
Tiki torch lights around firepit seating area
Path lights along the path to the firepit
3 puck lights under the floating bar
Fixtures
(1) Minka-Aire Xtreme H2O 65” Fan to replace existing fan on back porch
(2) wall mounted fans on back porch (near outdoor kitchen, on corners of windows)
Dog Door
Next to screen door on North Side of Screen Enclosure
Florida Glass
On the screen panels above the outdoor kitchen (6 panels
Pergola Structure
Near firepit
Landscaping

Kitchen Layout Options

Layout A

KITCHEN PLAN A.jpg
1_A - Kitchen.jpg
1_18 - Photo.jpg
1_20 - Photo.jpg
1_10 - Photo.jpg

Layout B

KITCHEN PLAN B.jpg
1_B - Kitchen.jpg
1_15 - Photo.jpg
1_19 - Photo.jpg
1_Back Yard.jpg

Layout C

KITCHEN PLAN C.jpg
1_C - Kitchen.jpg
1_16 - Photo.jpg
1_20 - Photo (2).jpg

Firepit Seating Layout Options

Layout A

A.jpg
1_A - Fire Pit.jpg
1_A.jpg

Layout B

B.jpg
1_B- Fire Pit.jpg
1_B.jpg
1_9 - Photo.jpg

Layout C

C.jpg
1_C - Fire Pit.jpg
1_C.jpg

Layout D

D.jpg
1_D - Fire Pit.jpg
1_D.jpg

Want to print your doc?
This is not the way.
Try clicking the ··· in the right corner or using a keyboard shortcut (
CtrlP
) instead.