Skip to content

Design Approval

Below is the design approval for your outdoor design.
We offer this proposal, including all original concepts and designs, with the agreement that you will not share them publicly, on social media, or with outside contractors without the permission of Pratt Guys. We do encourage you to share the site internally with your family and friends and build excitement for your project!

Design Approval Checklist

Refer to this checklist 📋 to make sure your drawings are error-free and designed just the way you want 💯. Please note, that we cannot release your Final Drawings without confirmation that these items are correct.
All images correctly portray my intent for the layout and structural design for my Backyard Design.
All important structural information is included.
Stated dimensions are correct.

Design Waivers

Scope of Work Waiver: The design presented is conceptual in nature and does not define the final scope of work. Refer to your approved invoice on Buildertrend for a complete and accurate description of your included scope of work. Features or elements depicted in the design that are not specifically included in the approved invoice are not part of the contracted scope, regardless of their appearance in renderings or drawings.
Color and Selection Waiver: The drawings' materials and colors are for conceptual purposes only and may not represent your final selections. The Material and Color Selection Finalization Form takes priority over any shown materials or colors. Please note that actual colors may vary from what is seen on monitors or when printed.
Landscape Waiver: Any landscaping depicted on renderings is for conceptual purposes only. Landscape plan will verify specific plant species and sizes.
Survey Waiver: The design presented is based on the survey information provided by the client. Tree locations, topography, and other site-specific details are subject to verification and may require adjustments to ensure accuracy in implementation. Any discrepancies in the survey data could impact final design elements.
Special Features Waiver: Depictions of special features such as water and fire features are for conceptual purposes only. The velocity and volume of the water or fire will vary.
Engineering Waiver: Structural elements depicted on renderings are for conceptual purposes only. Engineering takes precedence over the size, location, and products used for structural masonry, wood framing, roofing, floors, etc.

Feasibility Study

CURRENT 10-10-2025
Primary/Attached Structure Setbacks
Front - 25'
Sides - 5'
Rear - 10
Max Height for Primary/Attached Structures
35'
Accessory Structure Setbacks
Sides - 3'
Rear - 3'
Pavers/Patio Setbacks
Sides - 3'
Rear - 3'
Max Lot Coverage by Buildings w/ Solid Roofs
65 percent
Max Lot Coverage by Impervious Surfaces
70 percent
HOA Restrictions:
Our Building Documents Specialist, Justin Belichis, spoke with the HOA. No artificial turf allowed.
Justin Belichis
Building Documents Specialist
Phone:

Survey

Malankau Survey.jpg

Project Overview

CURRENT 10-10-2025
Screen Enclosure
Concrete Footer
Aluminum Screen Enclosure
Style: Mansard
Color: Bronze
Gutter: 7" Supergutter
Roof & Wall Screen: 18x14
Chair Rail: 3'
Down Spouts: 2- 4" x 5"
Two Screen Doors
30' x 30' Screen Enclosure (30' + 30' + 13')
10' Walls
No See-Um Screen Upgrade on Walls Only
Upgrade all Screws on Screen Enclosure to Stainless Steel Screws
Pavers - Tremron or Belgard
39 tons of crushed crete, 6" thick base
Ground concrete, this is to create a hard, compact, reliable ground and surface to work with for the pavers
1,684 sq. ft. of pavers (220 sq.ft. Front Porch, 900 sq.ft. Back Porch & Screen Enclosure, and 188' linear ft of Walkways)
Manufacturer: Tremron or Belgard
River Rock & Aluminum Edging
Grass Removal
Excavation
Commercial Grade Filter Cloth
(23) Aluminum Edging (Black) to hold in all Gravel and to help prevent Grass from growing into the Gravel
3" thick of Gravel
3/4" White River Rock Included within Pricing (Final selection TBD)

Plans

CURRENT 10-27-2025
Overview_05_OVERVIEW_05_OVERVIEW_05_OVERVIEW.jpg
Tree Plan_06_TREE PLAN.jpg
Material Selections_07_MATERIAL SELECTIONS.jpg
Drainage_08_DRAINAGE.jpg
Screen Enclosure_09_SCREEN ENCLOSURE.jpg
Fence_10_FENCE.jpg
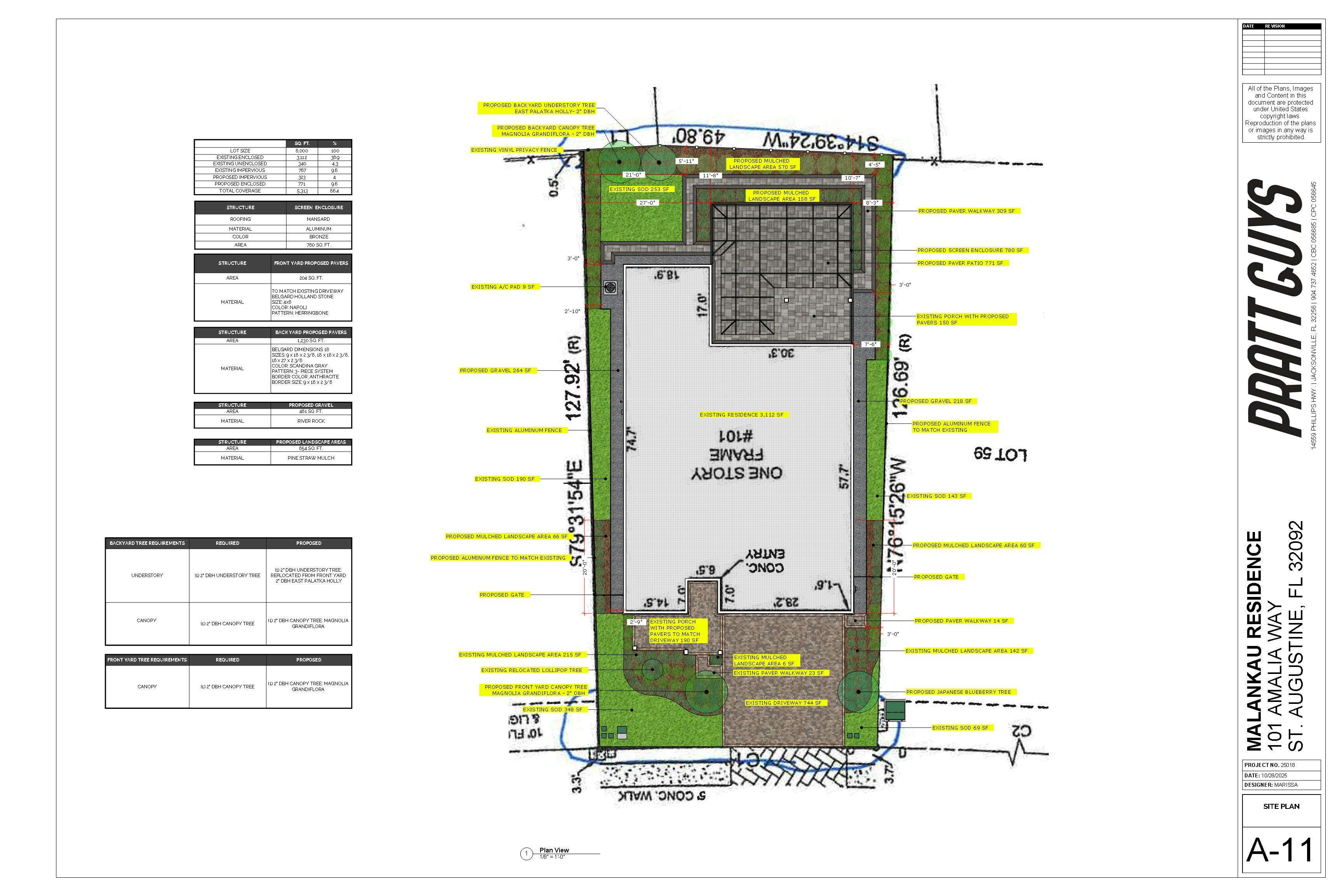
Site Plan_11_SITE PLAN.jpg

Renderings

CURRENT 10-27-2025

Want to print your doc?
This is not the way.
Try clicking the ··· in the right corner or using a keyboard shortcut (
CtrlP
) instead.