Skip to content

Design Process

Below is the design process for your outdoor design.
We offer this proposal, including all original concepts and designs, with the agreement that you will not share them publicly, on social media, or with outside contractors without the permission of Pratt Guys. We do encourage you to share the site internally with your family and friends and build excitement for your project!

Design Waivers

1️⃣ Color and Selection Waiver: The drawings' materials and colors are for conceptual purposes only and may not represent your final selections. The Material and Color Selection Finalization Form takes priority over any shown materials or colors. Please note that actual colors may vary from what is seen on monitors or when printed.
2️⃣ Landscape Waiver: Any landscaping depicted on renderings is for conceptual purposes only. Client must obtain landscape plan to verify specific plant species and sizes.
3️⃣ Special Features Waiver: Depictions of special features such as water and fire features are for conceptual purposes only. The velocity and volume of the water or fire will vary.
4️⃣ Engineering Waiver: Structural elements depicted on renderings are for conceptual purposes only. Engineering takes precedence over the size, location, and products used for structural masonry, wood framing, roofing, floors, etc.

Feasibility Study

Primary Structure Setbacks:
Front - 20’
Sides & Rear - Min. 15’ Combined
Accessory Structure Setbacks:
Same As Primary Structure
Swimming Pool Setbacks:
Same As Primary Structure
Max Lot Coverage by Impervious Surface Area:
65%

Shade Study

Poore_Site Analysis.jpg

Renders

03/19/25
Kilbane_1 - Photo.jpg
Kilbane_2 - Photo.jpg
Kilbane_3 - Photo.jpg
Kilbane_4 - Photo.jpg
Kilbane_5 - Photo.jpg
Kilbane_6 - Photo.jpg
Kilbane_7 - Photo.jpg
Kilbane_8 - Photo.jpg
Kilbane_9 - Photo.jpg
Kilbane_10 - Photo.jpg
Kilbane_11 - Photo.jpg
Kilbane_12 - Photo.jpg
Kilbane_13 - Photo.jpg
Kilbane_14 - Photo.jpg
Kilbane_15 - Photo.jpg
Kilbane_16 - Photo.jpg
Kilbane_17 - Photo.jpg
Kilbane_18 - Photo.jpg
Kilbane_19 - Photo.jpg
Kilbane_20 - Photo.jpg
There are no rows in this table

Archived Designs

Alignments

Kilbane_Alignments_08_ALIGNMENTS_08_ALIGNMENTS.jpg

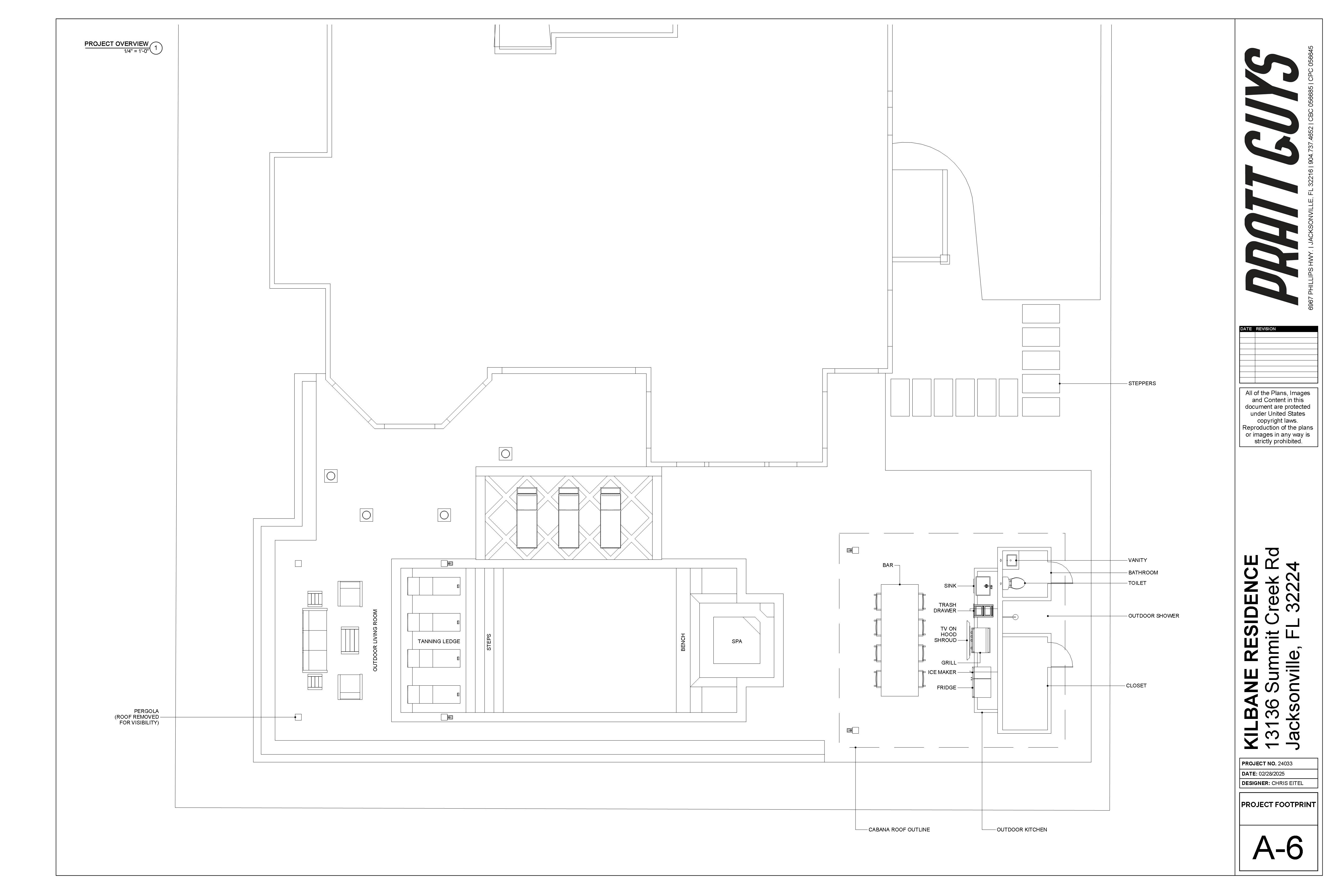
Layout

Kilbane_Layout_06_PROJECT FOOTPRINT.jpg

Renders

02/28/25
Kilbane_1 - Photo.jpg
Kilbane_2 - Photo.jpg
Kilbane_3 - Photo.jpg
Kilbane_4 - Photo.jpg
Kilbane_5 - Photo.jpg
Kilbane_6 - Photo.jpg
Kilbane_7 - Photo.jpg
Kilbane_8 - Photo.jpg
Kilbane_9 - Photo.jpg
Kilbane_10 - Photo.jpg
Kilbane_11 - Photo.jpg
Kilbane_12 - Photo.jpg
Kilbane_13 - Photo.jpg
Kilbane_14 - Photo.jpg
Kilbane_15 - Photo.jpg
Kilbane_16 - Photo.jpg
Kilbane_17 - Photo.jpg
Kilbane_19 - Photo.jpg
Kilbane_18 - Photo.jpg
Kilbane_20 - Photo.jpg
There are no rows in this table



Want to print your doc?
This is not the way.
Try clicking the ··· in the right corner or using a keyboard shortcut (
CtrlP
) instead.