Skip to content

Design Approval

Below is the design approval for your outdoor design.
We offer this proposal, including all original concepts and designs, with the agreement that you will not share them publicly, on social media, or with outside contractors without the permission of Pratt Guys. We do encourage you to share the site internally with your family and friends and build excitement for your project!

Design Approval Checklist

Refer to this checklist 📋 to make sure your drawings are error-free and designed just the way you want 💯. Please note, that we cannot release your Final Drawings without confirmation that these items are correct.
All images correctly portray my intent for the layout and structural design for my Backyard Design.
All important structural information is included.
Stated dimensions are correct.

Design Waivers

1️⃣ Color and Selection Waiver: The drawings' materials and colors are for conceptual purposes only and may not represent your final selections. The Material and Color Selection Finalization Form takes priority over any shown materials or colors. Please note that actual colors may vary from what is seen on monitors or when printed.
2️⃣ Landscape Waiver: Any landscaping depicted on renderings is for conceptual purposes only. Client must obtain landscape plan to verify specific plant species and sizes.
3️⃣ Special Features Waiver: Depictions of special features such as water and fire features are for conceptual purposes only. The velocity and volume of the water or fire will vary.
4️⃣ Engineering Waiver: Structural elements depicted on renderings are for conceptual purposes only. Engineering takes precedence over the size, location, and products used for structural masonry, wood framing, roofing, floors, etc.

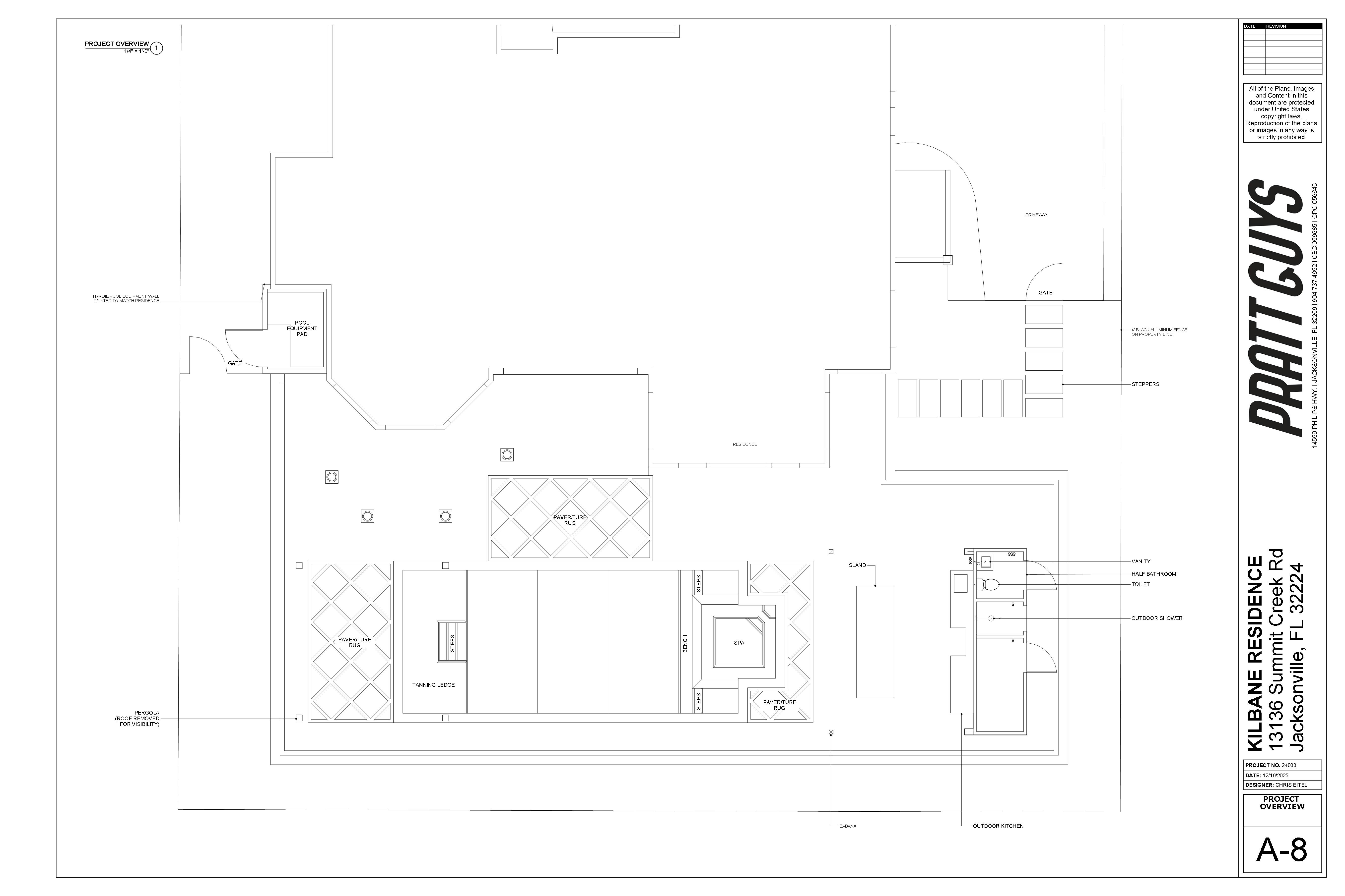
Project Overview

Kilbane_Design Guide_08_PROJECT OVERVIEW.jpg

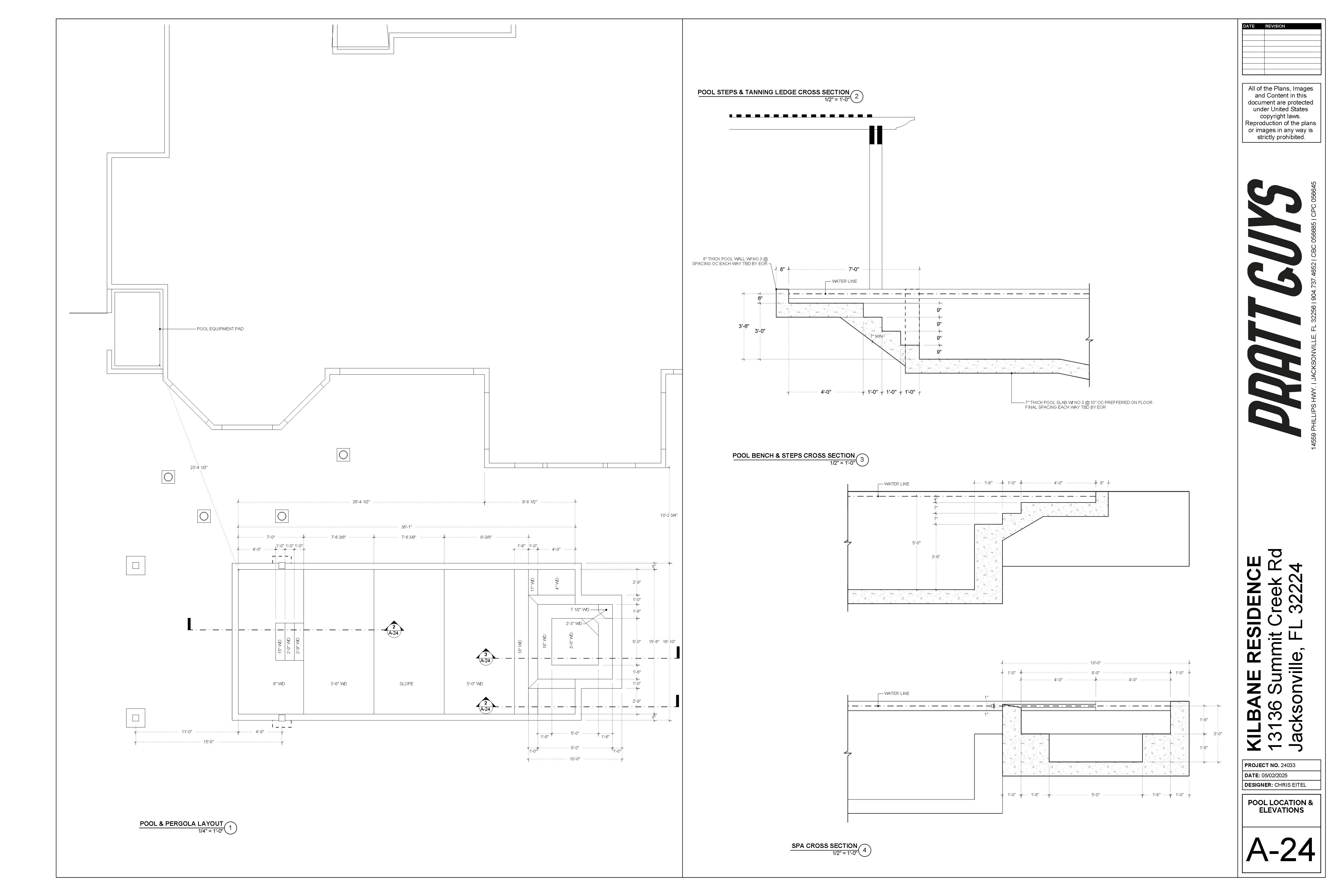
Pool Sections

Kilbane_Design Guide_24_POOL LOCATION & ELEVATIONS.jpg

Lighting Layout

Kilbane_Design Guide_30_LIGHTING LAYOUT.jpg

Renderings

Click preview to enlarge images 🔎
Kilbane_20 - Photo.jpg
Kilbane_2 - Photo.jpg
Kilbane_1 - Photo.jpg
Kilbane_3 - Photo.jpg
Kilbane_21 - Photo.jpg
Kilbane_13 - Photo.jpg
Kilbane_18 - Photo.jpg
Kilbane_12 - Photo.jpg
Kilbane_11 - Photo.jpg
Kilbane_10 - Photo.jpg
Kilbane_37 - Photo.jpg
Kilbane_14 - Photo.jpg
Kilbane_33 - Photo.jpg
Kilbane_38 - Photo.jpg
Kilbane_34 - Photo.jpg
Kilbane_35 - Photo.jpg
Kilbane_36 - Photo.jpg
Kilbane_6 - Photo.jpg
Kilbane_4 - Photo.jpg
Kilbane_8 - Photo.jpg
Kilbane_7 - Photo.jpg
Kilbane_5 - Photo.jpg
Kilbane_16 - Photo.jpg
Kilbane_9 - Photo.jpg
Kilbane_17 - Photo.jpg
Kilbane_41 - Photo.jpg
Kilbane_19 - Photo.jpg
Kilbane_22 - Photo.jpg
Kilbane_23 - Photo.jpg
Kilbane_24 - Photo.jpg
Kilbane_25 - Photo.jpg
Kilbane_42 - Photo.jpg
Kilbane_43 - Photo.jpg
Kilbane_26 - Photo.jpg
Kilbane_27 - Photo.jpg
Kilbane_28 - Photo.jpg
Kilbane_29 - Photo.jpg
Kilbane_30 - Photo.jpg
Kilbane_32 - Photo.jpg
Kilbane_31 - Photo.jpg
There are no rows in this table

360 Photos

Click and drag to look around 👀
Want to print your doc?
This is not the way.
Try clicking the ··· in the right corner or using a keyboard shortcut (
CtrlP
) instead.