Skip to content

Design Approval

Below is the design approval for your outdoor design.
We offer this proposal, including all original concepts and designs, with the agreement that you will not share them publicly, on social media, or with outside contractors without the permission of Pratt Guys. We do encourage you to share the site internally with your family and friends and build excitement for your project!

Design Approval Checklist

Refer to this checklist 📋 to make sure your drawings are error-free and designed just the way you want 💯. Please note, that we cannot release your Final Drawings without confirmation that these items are correct.
All images correctly portray my intent for the layout and structural design for my Backyard Design.
All important structural information is included.
Stated dimensions are correct.

Design Waivers

1️⃣ Color and Selection Waiver: The drawings' materials and colors are for conceptual purposes only and may not represent your final selections. The Material and Color Selection Finalization Form takes priority over any shown materials or colors. Please note that actual colors may vary from what is seen on monitors or when printed.
2️⃣ Landscape Waiver: Any landscaping depicted on renderings is for conceptual purposes only. Client must obtain landscape plan to verify specific plant species and sizes.
3️⃣ Special Features Waiver: Depictions of special features such as water and fire features are for conceptual purposes only. The velocity and volume of the water or fire will vary.
4️⃣ Engineering Waiver: Structural elements depicted on renderings are for conceptual purposes only. Engineering takes precedence over the size, location, and products used for structural masonry, wood framing, roofing, floors, etc.

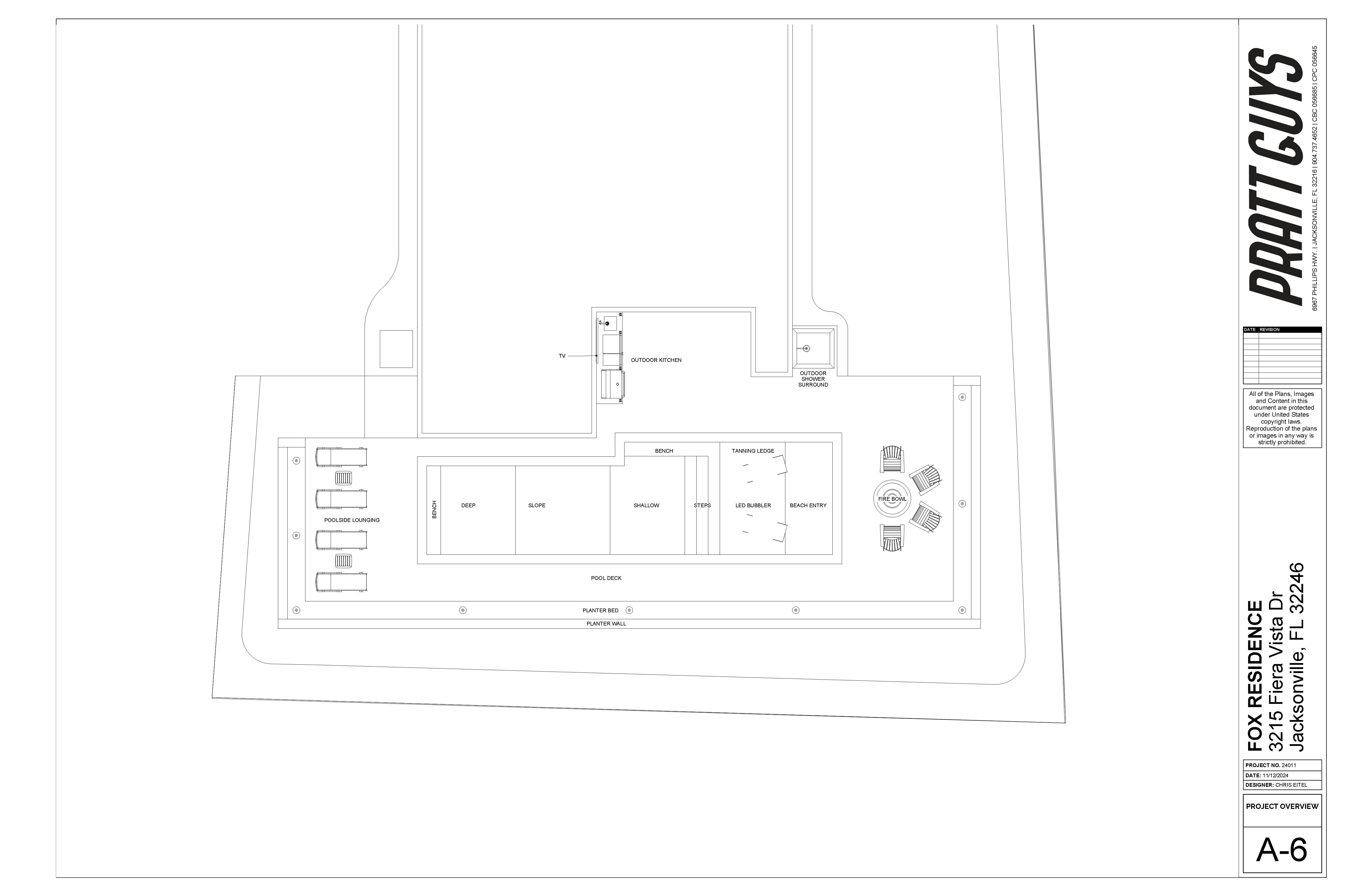
Project Overview

Fox_Design Guide_06_PROJECT OVERVIEW.jpg

Pool Sections

Fox_Design Guide_13_POOL SECTION.jpg

Kitchen

Fox_Design Guide_12_KITCHEN ELEVATION.jpg

Renderings

Click preview to enlarge images 🔎
Fox_1 - Photo.jpg
Fox_2 - Photo.jpg
Fox_3 - Photo.jpg
Fox_4 - Photo.jpg
Fox_5 - Photo.jpg
Fox_6 - Photo.jpg
Fox_7 - Photo.jpg
Fox_8 - Photo.jpg
Fox_9 - Photo.jpg
Fox_10 - Photo.jpg
Fox_11 - Photo.jpg
Fox_12 - Photo.jpg
Fox_13 - Photo.jpg
Fox_14 - Photo.jpg
There are no rows in this table

360 Photos

Click and drag to look around 👀
Want to print your doc?
This is not the way.
Try clicking the ··· in the right corner or using a keyboard shortcut (
CtrlP
) instead.