Skip to content

Design Process

Below is the design process for your outdoor design.
We offer this proposal, including all original concepts and designs, with the agreement that you will not share them publicly, on social media, or with outside contractors without the permission of Pratt Guys. We do encourage you to share the site internally with your family and friends and build excitement for your project!

Design Waivers

1️⃣ Color and Selection Waiver: The drawings' materials and colors are for conceptual purposes only and may not represent your final selections. The Material and Color Selection Finalization Form takes priority over any shown materials or colors. Please note that actual colors may vary from what is seen on monitors or when printed.
2️⃣ Landscape Waiver: Any landscaping depicted on renderings is for conceptual purposes only. Client must obtain landscape plan to verify specific plant species and sizes.
3️⃣ Special Features Waiver: Depictions of special features such as water and fire features are for conceptual purposes only. The velocity and volume of the water or fire will vary.
4️⃣ Engineering Waiver: Structural elements depicted on renderings are for conceptual purposes only. Engineering takes precedence over the size, location, and products used for structural masonry, wood framing, roofing, floors, etc.

Feasibility Study

Primary Structure Setbacks: N/A
Accessory Structure Setbacks: 12” from property line. Includes roof overhang & gutters.
Swimming Pool Setbacks: N/A
Max Lot Coverage by Impervious Surface Area: N/A

Interior Material Selections (4/15/2024)

The list and renderings below feature the bathroom tile you preferred, with a white paint to help the tile stand out. There are two different sets of renders with that color combination, each with the two styles of sconce lights you liked.

Materials as shown below:

Wall Paint:
Ceiling Fan:
Kitchenette
Cabinets Style: Bridgewood Maple
Cabinets Color:
Shelves: Wood stained to match flooring, shelves suspended between cabinets w/ no reveal
Countertop:
Microwave: Temporary model in renders, as we’re still looking for a stainless steel model to fit the cabinet
Bathroom
Vanity Cabinets: Bridgewood White Oak
Vanity Cabinets Color:
Vanity Countertop:
Sconce Lights:
Flooring Grout: Light Color
Shower Tile:
Phillipa Capiz Sconces
Eraso-1_14 - Photo.jpg
Eraso-1_11 - Photo.jpg
Eraso-1_10 - Photo.jpg
There are no rows in this table

Materials as shown below:

Wall Paint:
Ceiling Fan:
Kitchenette
Cabinets Style: Bridgewood Maple
Cabinets Color:
Shelves: Wood stained to match flooring, shelves suspended between cabinets w/ no reveal
Countertop:
Microwave: Temporary model in renders, as we’re still looking for a stainless steel model to fit the cabinet
Bathroom
Vanity Cabinets: Bridgewood White Oak
Vanity Cabinets Color:
Vanity Countertop:
Sconce Lights:
Flooring Grout: Light Color
Shower Tile:
Bridget Recycled Glass Sconces
Eraso-2_11 - Photo.jpg
Eraso-2_14 - Photo.jpg
Eraso-2_10 - Photo.jpg
There are no rows in this table


Interior Material Selections (Archived 4/8/2024)

Here is the latest material breakdown with renders below. I put in the fan you requested, and changed the bathroom tile to the dark blue color in the style you preferred.

Materials as shown below:

Wall Paint:
Ceiling Fan:
Kitchenette
Cabinets Style: Bridgewood Maple
Cabinets Color:
Shelves: Wood stained to match flooring, shelves suspended between cabinets w/ no reveal
Countertop:
Microwave: Temporary model in renders, as we’re still looking for a stainless steel model to fit the cabinet
Bathroom
Vanity Cabinets: Bridgewood White Oak
Vanity Cabinets Color:
Vanity Countertop:
Sconce Lights:
Flooring Grout: Light Color
Shower Tile:
Material Options 4/8/2024
Eraso_5 - Photo.jpg
Eraso_4 - Photo.jpg
Eraso_7 - Photo.jpg
Eraso_6 - Photo.jpg
Eraso_8 - Photo.jpg
Eraso_9 - Photo.jpg
Eraso_11 - Photo.jpg
Eraso_14 - Photo.jpg
Eraso_10 - Photo.jpg
Eraso_12 - Photo.jpg
There are no rows in this table

Interior Material Selections (Archived)

Below are two sets of renders, each with different material sets. Either can be left as-is, or the materials can be mixed and matched however you’d like. The microwave is temporary, as we are still searching for a stainless steel model that will fit the cabinet.

Material Option - 1

Wall Paint:
Wallpaper Accent Wall:
Ceiling Fan:
Kitchenette
Cabinets Style: Bridgewood Maple
Cabinets Color:
Shelves: Alabaster to match cabinetry, floating style with space between cabinets and shelves
Countertop:
Lighting: LED Strip Lighting under Floating Shelves
Microwave: Temporary model in renders, as we’re still looking for a stainless steel model to fit the cabinet
Bathroom
Vanity Cabinets: Bridgewood White Oak
Vanity Cabinets Color:
Vanity Countertop:
Flooring Grout: Dark Color
Shower Tile:
Material Option - 1 Renders
Eraso_5 - Photo.jpg
Eraso_4 - Photo.jpg
Eraso_6 - Photo.jpg
Eraso_7 - Photo.jpg
Eraso_8 - Photo.jpg
Eraso_9 - Photo.jpg
Eraso_11 - Photo.jpg
Eraso_10 - Photo.jpg
There are no rows in this table

Material Option - 2

Wall Paint:
Wallpaper Accent Wall: None
Ceiling Fan:
Kitchenette
Backsplash: Herringbone Pattern
Cabinets Style: Bridgewood Maple
Cabinets Color:
Shelves: Wood stained to match flooring, shelves suspended between cabinets w/ no reveal
Countertop:
Lighting: LED Strip Lighting under Floating Shelves
Microwave: Temporary model in renders, as we’re still looking for a stainless steel model to fit the cabinet
Bathroom
Vanity Cabinets: Bridgewood White Oak
Vanity Cabinets Color:
Vanity Countertop:
Flooring Grout: Dark Color
Material Option - 2 Renders
Eraso_Materials-2.2_5 - Photo.jpg
Eraso_Materials-2.2_4 - Photo.jpg
Eraso_Materials-2.2_6 - Photo.jpg
Eraso_Materials-2.2_7 - Photo.jpg
Eraso_Materials-2.2_8 - Photo.jpg
Eraso_Materials-2.2_9 - Photo.jpg
Eraso_Materials-2.2_11 - Photo.jpg
Eraso_Materials-2.2_10 - Photo.jpg
There are no rows in this table

Exterior With Brick

After speaking with the construction team and Derek & Adam Pratt, it was determined that the brick in the two options I sent yesterday would be very difficult (and very expensive!) to build. They also asked that I change the roof to a gable on both ends, with the small gable still over the garage. I agree that this new roof design will look much better from the street/driveway. In this new version, I also added sconce lights flanking the French doors and the garage door. The style of lights is temporary, and will be changed out once you make your official selections. I just wanted to get something in there for you to see how it looks with lights added.
Eraso-2_Elevations & Floor Plan_3.jpg
Eraso_4 - Photo.jpg
Eraso_10 - Photo.jpg
Eraso_8 - Photo.jpg
Eraso_9 - Photo.jpg
Eraso_5 - Photo.jpg
Eraso_6 - Photo.jpg
Eraso_7 - Photo.jpg
Eraso_11 - Photo.jpg
Eraso_2 - Photo.jpg
Eraso_3 - Photo.jpg
Eraso_12 - Photo.jpg
Eraso_1 - Photo.jpg
There are no rows in this table

Archive Options - 1/29/24

In these two new options, the pool house has been extended 3’-0” closer to the house, with the extra space added to the living area as we discussed. I have created two different options for the exterior brick as well.

Brick Option - 1

Eraso-2_Option 1_3.jpg
The first option for the brick facade is designed to best match the house. For balance, I added a slimmer window in the shower, and moved the living room window a little closer to the door. The brick wraps around the corners on the sides of the pool house with the fence. I did this to help keep the cost down, as those sides won’t really be seen.
Eraso_Brick 2_1 - Photo.jpg
Eraso_Brick 2_2 - Photo.jpg
Eraso_Brick 2_3 - Photo.jpg
Eraso_Brick 2_5 - Photo.jpg
Eraso_Brick 2_4 - Photo.jpg
Eraso_Brick 2_7 - Photo.jpg
Eraso_Brick 2_6 - Photo.jpg
Eraso_Brick 2_8 - Photo.jpg
Eraso_Brick 2_11 - Photo.jpg
Eraso_Brick 2_9 - Photo.jpg
Eraso_Brick 2_10 - Photo.jpg
Eraso_Brick 2_12 - Photo.jpg
There are no rows in this table
/image tab

Brick Option - 2

Eraso-2_Option 2_4.jpg
The second option has a lower brick facade around the pool and driveway sides. The brick on the rear and fence sides only wrap around the corners in this option as well.
Eraso_1 - Photo.jpg
Eraso_2 - Photo.jpg
Eraso_3 - Photo.jpg
Eraso_5 - Photo.jpg
Eraso_6 - Photo.jpg
Eraso_7 - Photo.jpg
Eraso_4 - Photo.jpg
Eraso_8 - Photo.jpg
Eraso_11 - Photo.jpg
Eraso_9 - Photo.jpg
Eraso_10 - Photo.jpg
Eraso_12 - Photo.jpg
There are no rows in this table

Archived Design 1/29/24

Below is the layout option chosen during our last meeting. I have replaced the sketches with more detailed drawings.
Eraso-2_Elevations & Floorplan_3.jpg

3D Photorealistic Renders

Below are interior and exterior renders of the pool house. Click any image to view full size.
Eraso_1 - Photo.jpg
Eraso_2 - Photo.jpg
Eraso_3 - Photo.jpg
Eraso_14 - Photo.jpg
Eraso_10 - Photo.jpg
Eraso_4 - Photo.jpg
Eraso_11 - Photo.jpg
Eraso_5 - Photo.jpg
Eraso_6 - Photo.jpg
Eraso_9 - Photo.jpg
Eraso_7 - Photo.jpg
Eraso_8 - Photo.jpg
Eraso_12 - Photo.jpg
There are no rows in this table

Archived Layout Options

Below are five different layout options for the pool house and garage rebuild. Each version has a unique floorplan, along with possible furniture arrangements. I have also provided elevation views of the exterior of each option from both the house side and the pool side. The doors into the bathrooms of each design are a new style of pocket door with soft-close glides.

Option - 1

The first option has a long, rectangular living area, a linear bathroom design, and a large walk-in closet off the bathroom. The French doors are centered on the poolside wall, with two large windows flanking either side. The roof is gabled towards the pool side.

Eraso-2_Layout Options_3.jpg

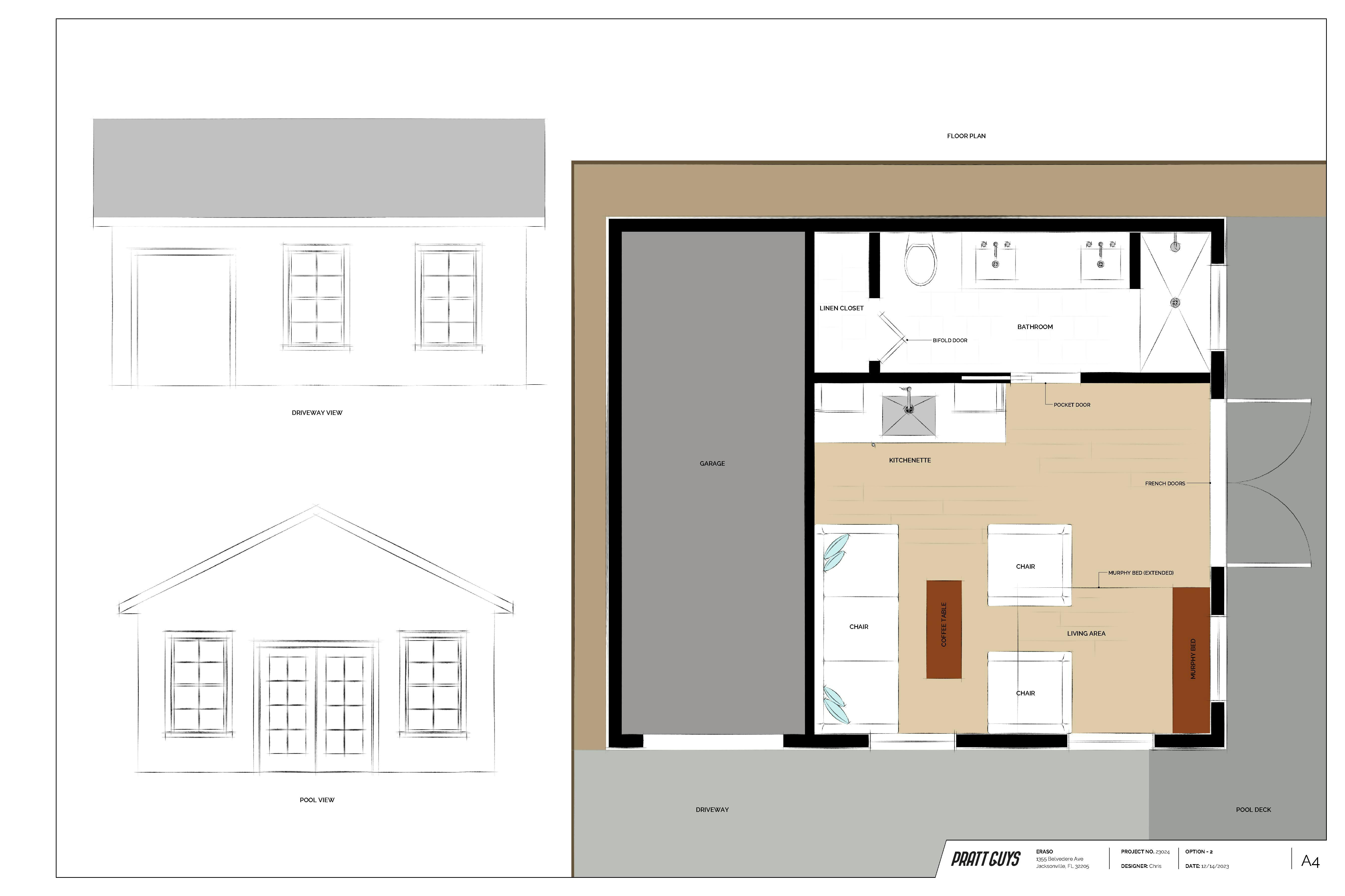
Option - 2

The second option features the same door and window arrangement on the pool side. The roof is gabled towards the pool side in this option as well. The bathroom in this version has a smaller linen closet, which allows for more space in the living area. This version also has an extra window on the house side.
Eraso-2_Layout Options_4.jpg

Option - 3

The third option has the French doors moved to the rear of the building, with two mullion windows on the house side. The roof has a small gable over the French doors. Two more large windows in the living area and a small window near the kitchenette will provide plenty of natural lighting. The bathroom in this version is a bit smaller, and features a 24” linen cabinet in lieu of a framed closet. This smaller bathroom has a slightly smaller shower and a single-sink vanity.
Eraso-2_Design Guide_5.jpg

Option - 4

Option - 4 has the bathroom and kitchenette on the house side. A slightly larger bathroom allows for a double vanity and larger shower than the previous option. The kitchenette, being on the pool side in this version, would allow for keeping an eye on the pool while standing at the sink. The roof in this design is a standard hip roof.
Eraso-2_Design Guide_6.jpg

Option - 5

The final option has a single door on the house side of the building, and also has the kitchenette and small window on the pool side. This bathroom also has the linen cabinet rather than a framed closet, allowing enough space for the double vanity and large walk-in shower. The roof for Option -5 is gabled towards the driveway.
Eraso-2_Design Guide_7.jpg
Want to print your doc?
This is not the way.
Try clicking the ··· in the right corner or using a keyboard shortcut (
CtrlP
) instead.