Skip to content
Dzīvokļa dizains
  • Pages
    • Dzīvokļa dizains
    • Virtuves fasādes
    • Lampas
    • White Halifax oak

Dzīvokļa dizains

Esam diezgan sīki aprakstījuši, ko vēlamies un kas mums patīk, bet, tas nenozīmē, ka tas viss ir obligāti jārealizē tieši tā, kā esam to uzrakstījuši un izplānojuši. Mēs paļaujamies uz Tavu profesionālo vērtējumu, un, ja kaut ko esam ne tā izdomājuši un izplānojuši, kaut kas neizskatīsies labi utt., tad nebaidies to mainīt. Mums ir svarīgi funkcionāls, bet arī skaists dizains.
Mums prioritāri ir sagatavot dizainu virtuvei un dzīvojamajai zonai, guļamistabas var nedaudz pagaidīt, jo cik esam sazinājušies ar virtuvju izstrādātājiem, izstrāde ir ap mēnesi.

Vispārīgi

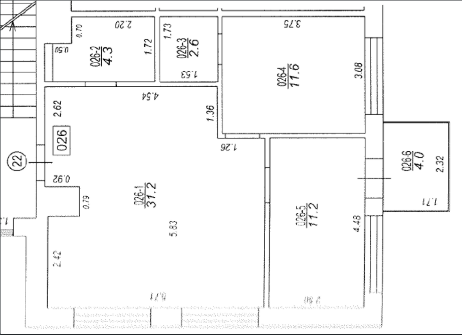
Dzīvokļa plāns

Dzīvokļa plāns no uzmērīšanas lietas
image.png

Rīta saule uz balkona, dienas saule - dzīvojamajā istabā
image.png

Šie izmēri ir ļoti Tuvi faktiskajiem
image.png
Lūk plāns mērogā dwg. formātā
Dzīvokļa plāns Gaiļezera.dwg
721.1 kB

Nedaudz esam pamainījuši oriģināli paredzēto istabu sadalījumu:
Meitu istaba - 11,6 m2
Mūsu guļamistaba - 11,2 m2

Griestu augstums

image.png
Zemāk tabulā pierakstītais augstums pie dzīvojamās istabas visticamāk ir kļūda, jo istabā ir tikai 2 augstumi - nišas augstums 2480 un visur citur šajā istabā griestu augstums ir 2770.
image.png

Logu augstums

image.png
image.png

Tehniskie plāni - krāsojumi, ventilācija, ūdens, elektrība

01_Telpu krāsojuma plāns.pdf
279.2 kB
10_Izpildshēma ventilācija.pdf
56.9 kB
08_Izpildshēma ūdensvads.pdf
140.8 kB
02_Dzīvokļa elektrotīklu plāns.pdf
265.2 kB
01_Vājstrāvas tīklu plāns.pdf
239.4 kB

Dzīvokļa bildes

Dzīvoklī jau ir

Vannasistaba jau ir izflīzēta, tajā jau ir vanna, izlietne un pods. Flīžu dizainu var redzēt dzīvokļa bildēs.
Virtuves zonā uz grīdas ir flīzes, pārējā dzīvoklī ir lamināts. Grīdas krāsa un grīdas flīžu krāsa bildēs.
Meitu istabā esošajam ieejamajam skapim plānojumu domāsim paši, un arī skapja durvis jau ir.
Kopumā dzīvoklī jau tagad esošie toņi (grīdas, durvju, flīžu, sienu krāsojuma) mums ļoti patīk.

Patīk

Visās istabās gribam biezos, tumsu radošos aizkarus. Virtuvē mazajam logam gan visticamāk jāliek žalūzija (jo gribam tumsu, ja nu kāds guļ tajā istabā).
Nav nekas pret, piemēram, Ikea, bet galvenais, lai mēbeles ir kvalitatīvas.
Dizains kopumā - praktisks, funkcionāls, aksētisks, minimālistisks. Neaizraujamies ar dažādiem sīkiem dekoriem. Ja ir kaut kas no dekoriem, tad kaut kas funkcionāls vai dizainiski ļoti skaists un pieskaņots kopējam dizainam. Neiebilstam pret sienas dekoriem - uz sienas var būt kāda bilde vai bilžu siena, pulkstenis, glezna utt.
Vietaivisur jābūt maksimāli izmantotai - plaukti līdz griestiem, dīvāns ar veļas kasti, arī gultas, ja iespējams, ar veļas kastēm, Protams, jā ir kāda skaista un interjerā iederīga gulta vai dīvāns bez veļas kastes, tad dizainam priekšroka. Plaukti maksimāli visur aizvērti. Var pa kādam atvērtajam.
Patīk skaistas un izteiksmīgas griestu lampas.
Patīk siltas krāsas, jo mums ir svarīga mājīguma sajūta.
Stilistiski patīk skandināvu stils, bet ar spilgtiem akcentiem, piemēram, viss mierīgās krāsās, bet ir spilgts dīvāns vai dīvāna spilveni, vai aizkari, vai glezna pie sienas vai kaut kas tāds.
Patīk matētas virsmas skapjiem, virtuvei utt.
Patīk koka detaļas, piemēram, virtuves virsma, koka paneļi uz sienām utt. To varēs redzēt arī tālākajos piemēros.
No krāsām mums īpaši patīk zemāk redzamās krāsas - bet atkal, tas nenozīmē, ka patīk tikai tās, un ka obligāti ir jāizvēlas tieši šīs. Patīk arī tan, tirkīza, kaut kādi siltie bēšie un pelēkie toņi.

image.png
image.png
image.png
image.png
4863 Statement Blue
image.png
image.png
Naval
Taupe krāsa
image.png
image.png
Warm neutrals
image.png

Negribam

Bērnistabā - tikai ne namiņgultu.
Virtuvi - tikai ne baltā krāsā.
Lampas - labāk griestu vai sienas, nevis stāvlampas.
Nepatīk glancēts (piemēram virtuves skapīšiem utt.), kā arī marmora raksts.
Nepatīk spilgti oranža krāsa (Tan tonis patīk)
Pārāk tumšu, nomācošu dizainu
Stiklu starp virtuves skapīšiem
Ādas vai zamšveidīgu dīvānu
“Kutis” paklāju bērnistabā

Dzīvojamā zona

Dzīvojamā zonā ir jābūt apvienotai ģimenes atpūtas zonai, kā arī vīra darbavietai.
Vīra darba vietai nav obligāti jābūt atdalītai. Viņš ir pieradis strādāt atvērtā telpā. Augstāk redzamajā plānā (sadaļā dzīvokļa plāns) esam ielikuši, kur mūsuprāt būtu labākā vieta darba galdam. Vīra darba vietā jābūt elektriski regulējamajam galdam, kā arī krēslam. Tas arī viss.
Elektriski regulējamā galda virsma 1300-1360
Kājas kādas no šīm IKEA - virsma būtu jāpasūta kautkur citur, jo IKEA nav pieejama virsma mums vēlamajos izmēros.

Salons arka:
Paceļamiem galdiem ir tikai viena veida kāju rāmis (T-veida). Kā bildē.
Modeļi 2MF un 2M16 iespējami trīs krāsās: melna, balta vai pelēka.
Galdi ar regulejamu augstumu 10-2-2020.pdf
557.6 kB

Un jāpiemeklē arī dizainam atbilstošs biroja tipa krēsls, bet tāds, lai tas būtu ne tikai skaists, bet tiešām arī piemērots ilgstošai sēdēšanai.

Dzīvojamajā telpā dīvāns un televizors nav centrālās lietas. Mēs neesam ģimene, kas sēž dīvānā un skatās TV. Dīvāns tīri funkcionāli, lai ir kur apsēsties, kā arī, tam jābūt izvelkams, kā papildu guļvietai (ideāli ar veļas kasti apakšā). Būtu svarīgi, lai dīvāns nav pārāk īss, izklājot to gulēšanai (jo mans vīrs ir 2 m garš), tātad, vai nu bez malām, vai neliels stūra, vai arī vienkārši garš. Viņa augumam gan nevar piemeklēt, bet, lai vismaz pa diagonāli var izgulties :)
Ekrāns dzīvojamajā telpā vairāk kā fons, kur ikdienā uzlikt fonā kādu dabasskatu vai mūzikas video, reizi pa reizei kopā noskatītos kādu multeni, bet ne kā centrālā objekts (tāpēc tam nav jābūt klasiski pretī dīvānam).
Patīk maksimāli daudz brīvas vietas - lielajā telpā, cik vien var, viss gar malām, lai pa vidu brīva vieta.
Tajās vietās, kurās domājam, ka būtu iespējams ielikt ekrānu, šķiet, ka ispējams TV būtu jāliek uz izbīdāmas kājas, lai tad, kad tas būtu aktuāli, to varētu skatīties gan no ēdamgalda, gan no dīvāna.
image.png

Lietas, kas mums patīk (bet tas nenozīmē, ka viss obligāti ir jāiekļauj)

TV uz koka paneļa, zem TV plaukts
image.png

Spilgtie akcenti
Dzīvojamā istaba.JPG
Koka panelis aiz dīvāna, un spilgts dīvāns
image.png
image.png
image.png
image.png
image.png


image.png
image.png
image.png
image.png
image.png

Priekštelpa

Koridoros ir izaicinošs, jo tas ir ļoti mazs (būtībā tā īsti nav). Tajā vajadzētu skapi virsdrēbēm (ar stangu pakaramajiem, atvilktnēm), spoguli visā garumā. Vēl vajadzētu kaut ko, kur apsēsties, velkot apavus, un kur likt apavus. Atkal - maksimāli daudz aizvērtie plaukti. Atvērtie pakaramie mums pārāk nepatīk, varbūt var kādu ielikt viesiem.
Mēs esam izveidojuši skapja paraugu, kas pildītu visas mums nepieciešamās funkcijas, kā arī esam norādījuši, kur mums šķiet tam būtu labākā vieta (var redzēt plānā pie dzīvokļu plāniem). Bet - ja kaut kas no tā neizskatītos labi, droši saki.
image.png

Idejas, kas mums patīk (protams, saprotam, ka nekam tik lielam mums nav vietas)


image.png
image.png
Augšā plaukt virs soliņa, kas ir kā daļa no skapja (šo bijām domājuši plānā)
image.png
image.png

Virtuves zona

image.png

Patīk šāda veida letes dizains ar masīvām metāla kājām
image.png

Virtuves izstrādātāju sagatavotais plāns.


Tehnika
There are no rows in this table


Lietas, kas mums patīk


Patīk šis variants, kad gan virsma, gan siena starp plauktiem vienāds. Patīk tas, ka koks virsmai un sienai, bet nav obligāti tieši koks.
image.png
Copper Backsplash
image.png

Melna izlietne un melns krāns
image.png
Plaukts virtuves galā
image.png
Sākotnēji domājām, ka gribam virtuvi gaišu (bet ne baltu), jo mums svarīga mājīguma un siltuma sajūta, baidījāmies, ka tumšas krāsas šo sajūtu neradīs. Tomēr skatoties piemērus, mums ļoti patīk, piemēram, šāda kombinācija:
image.png
image.png

Šajā piemērā šķiet, ka tumša virtuve nerada nomācošu un nemājīgu sajūtu:
image.png

Meitu istaba

Lai var redzēt, ka tā ir bērnistaba un meiteņu istaba, tomēr ne pārāk bērnišķīga. Nav obligāti viss rozā, bet tas nenozīmē arī, ka rozā krāsan nevar būt :) Ja ir zīmējums uz sienas, lai tas nav pārāk liels un nomācošs. Patīk pasteļtoņi.
Tajā jābūt 2 gultām (mazām meitenēm - vienai tudāļ gads, otrai 3 gadi - mazule pagaidām tur vēl negulēs, bet gultu gribam jau ieplānot); plauktiem rotaļlietu glabāšanai (atvērti zemāki plaukti, kur meitas pašas var paņemt rotaļlietas, un augstāki, kur glabājas tādas, kuras viņas nevar brīvi paņemt), ideāli - kādi plaukti grāmatām, auguma mērītājs un galdiņš (tos saglabājam no esošās istabas). Viss cits pēc ieskatiem.
Skapis ir ieejamā garderobe, tajā tikai jāsaplāno plauktu sistēma (to darīsim paši) un durvis.
Mazais galdiņš no IKEA, kuru vēlamies saglabāt:
image.png
Kā arī auguma mērītājs:
image.png

Lietas, kas mums patīk

Grāmatu plaukti pie sienas
image.png
image.png
Kaut kādi interesanti plaukti
image.png
Capture.JPG

Zviedru siena - ja ir iespējams, un nebojā koptēlu (bet noteikti ne tik liela kā šeit)
image.png

Lieli Lego bloki (jo Lego mums nozīmīga rotaļlieta)
image.png

Sajūtu bildes toņiem, istabas noskaņai

image.png
image.png

image.png
image.png
image.png
image.png
image.png
image.png

Guļamistaba

Guļamistabā obligāti gulta, skapis. Ideāli kaut kādi nelieli plauktiņi/skapīši blakus gultai, uz kuriem nolikt ūdens glāzi naktij utt. Gultas matracis 2200 x 1600 mm garš.
Istabas galā pie durvīm - iebūvējamais skapis.
Ļoti gribētu arī pavisam nelielu kosmētikas galdiņu. Kādā no šāda plānojuma dzīvokļa dizainiem vietas sadalījuma ziņā redzējām šādu variantu. Domājam par kaut ko līdzīgu, proti, atteikties no nelielas skapja daļas, lai pietiktu vieta kosmētikas galdiņam.
210528 000.jpg

Guļamistabu dizaini, kas mums patīk

Gulta ar sienas mīkstinājumu
image.png
Gulta ar koka paneļiem, vai jebkādā citā veidā izceltu sienu
image.png
image.png
image.png
image.png

Vannas istaba

image.png
Vannas augstums 648
image.png
Akmens masas vanna no Latvijas ražotāja “PAA”
Itāļu santehnikas ražotāja “Catalano” iebūvējamais pods


Kā jau minēju iepriekš, vannasistaba jau ir izflīzēta, tajā jau ir vanna, izlietne un pods.
Vannasistabā būs iebūvejamā veļas mašīna. Mēs gribētu skapīti zem izlietnes un ideāli būtu vēl kādus skapīšus kaut kur ielikt (varbūt virs veļas mašīnas, nišā aiz poda vai vēl kaut kur) - atkal maksimāli daudz skapīšus, bet, protams, nebojājot dizainu. Būtu labi ieplānot arī kaut kādus āķīsus vai ko citu, kur pakarināt dvieļus. Vannas istabā kaut kur pie izlietnes prasītos arī kāds atvērtais plaukts zobubirstēm utt.

Lietas, kas mums patīk


Verams stikls vannai - dizainiski pieejamas dažādas variācijas
image.png

Want to print your doc?
This is not the way.
Try clicking the ··· in the right corner or using a keyboard shortcut (
CtrlP
) instead.