Skip to content

Design Process

Below is the design process for your outdoor design.
We offer this proposal, including all original concepts and designs, with the agreement that you will not share them publicly, on social media, or with outside contractors without the permission of Pratt Guys. We do encourage you to share the site internally with your family and friends and build excitement for your project!

Design Waivers

1️⃣ Color and Selection Waiver: The drawings' materials and colors are for conceptual purposes only and may not represent your final selections. The Material and Color Selection Finalization Form takes priority over any shown materials or colors. Please note that actual colors may vary from what is seen on monitors or when printed.
2️⃣ Landscape Waiver: Any landscaping depicted on renderings is for conceptual purposes only. Client must obtain landscape plan to verify specific plant species and sizes.
3️⃣ Special Features Waiver: Depictions of special features such as water and fire features are for conceptual purposes only. The velocity and volume of the water or fire will vary.
4️⃣ Engineering Waiver: Structural elements depicted on renderings are for conceptual purposes only. Engineering takes precedence over the size, location, and products used for structural masonry, wood framing, roofing, floors, etc.

Feasibility Study

Primary Structure Setbacks:
15' from Front Property Line
5' from Side Property Lines
10' from Rear Property Line
Accessory Structure Setbacks:
15' from Front Property Line
5' from Side Property Lines
10' from Rear Property Line
Screen Enclosures must follow same setbacks as primary structures
Swimming Pool Setbacks: N/A
Max Lot Coverage by Impervious Surface Area: 70%
HOA Restrictions: 8’ Drainage Easement in Back Yard

Renders (05/10/24)

Below are the new renders featuring your chosen materials. The sconce lights in the lanai in these renders are essentially large versions of the same style that are on the screen enclosure posts. There are another couple of options Derek found linked in the email I sent.
Material Selections
Day_1 - Photo.jpg
Night_1 - Photo.jpg
Day_2 - Photo.jpg
Night_2 - Photo.jpg
Day_3 - Photo.jpg
Night_3 - Photo.jpg
Day_4 - Photo.jpg
Night_4 - Photo.jpg
Day_5 - Photo.jpg
Night_5 - Photo.jpg
Day_7 - Photo.jpg
Night_7 - Photo.jpg
Day_6 - Photo.jpg
Night_6 - Photo.jpg
Day_8 - Photo.jpg
Night_8 - Photo.jpg
Day_9 - Photo.jpg
Night_9 - Photo.jpg
Day_10 - Photo.jpg
Night_10 - Photo.jpg
Day_11 - Photo.jpg
Night_11 - Photo.jpg
Day_12 - Photo.jpg
Night_12 - Photo.jpg
Day_13 - Photo.jpg
Night_13 - Photo.jpg
Day_14 - Photo.jpg
Night_14 - Photo.jpg
Day_15 - Photo.jpg
Night_15 - Photo.jpg
Day_16 - Photo.jpg
Night_16 - Photo.jpg
There are no rows in this table


ARCHIVED DESIGNS (05/10/24)

Preliminary Layout



McFarland_Design Guide_3.jpg

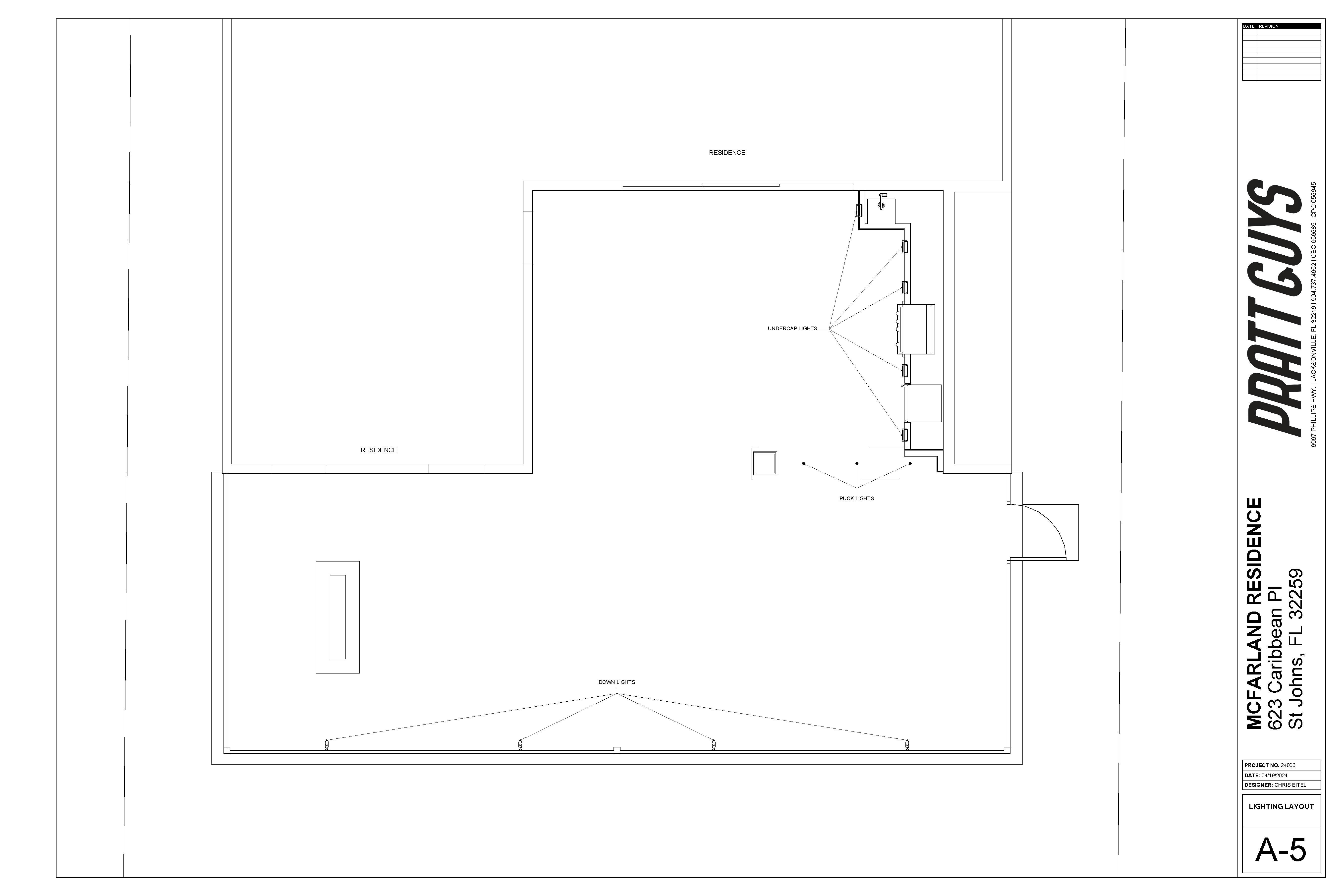
Lighting Layout

McFarland_Design Guide_4.jpg

Kitchen Elevations

McFarland_Design Guide_5.jpg

Renderings

The renderings below are to provide a more realistic idea of what your finished project will look like. The materials are temporary and will be updated after your official material selection meeting. Click any image to view full-size.
Daytime
McFarland_12 - Photo.jpg
McFarland_7 - Photo.jpg
McFarland_6 - Photo.jpg
McFarland_8 - Photo.jpg
McFarland_9 - Photo.jpg
McFarland_1 - Photo.jpg
McFarland_10 - Photo.jpg
McFarland_11 - Photo.jpg
McFarland_2 - Photo.jpg
McFarland_3 - Photo.jpg
McFarland_13 - Photo.jpg
McFarland_14 - Photo.jpg
McFarland_15 - Photo.jpg
McFarland_4 - Photo.jpg
McFarland_16 - Photo.jpg
McFarland_5 - Photo.jpg
There are no rows in this table
Nighttime
McFarland_Night_6 - Photo.jpg
McFarland_Night_7 - Photo.jpg
McFarland_Night_8 - Photo.jpg
McFarland_Night_9 - Photo.jpg
McFarland_Night_10 - Photo.jpg
McFarland_Night_11 - Photo.jpg
McFarland_Night_12 - Photo.jpg
McFarland_Night_13 - Photo.jpg
McFarland_Night_16 - Photo.jpg
McFarland_Night_14 - Photo.jpg
McFarland_Night_15 - Photo.jpg
McFarland_Night_3 - Photo.jpg
McFarland_Night_5 - Photo.jpg
McFarland_Night_1 - Photo.jpg
McFarland_Night_2 - Photo.jpg
McFarland_Night_4 - Photo.jpg
There are no rows in this table

Want to print your doc?
This is not the way.
Try clicking the ··· in the right corner or using a keyboard shortcut (
CtrlP
) instead.