Skip to content

Design Approval

Below is the design approval for your outdoor design.
We offer this proposal, including all original concepts and designs, with the agreement that you will not share them publicly, on social media, or with outside contractors without the permission of Pratt Guys. We do encourage you to share the site internally with your family and friends and build excitement for your project!

Design Approval Checklist

Refer to this checklist 📋 to make sure your drawings are error-free and designed just the way you want 💯. Please note, that we cannot release your Final Drawings without confirmation that these items are correct.
All images correctly portray my intent for the layout and structural design for my Backyard Design.
All important structural information is included.
Stated dimensions are correct.

Design Waivers

Scope of Work Waiver: The design presented is conceptual in nature and does not define the final scope of work. Refer to your approved invoice on Buildertrend for a complete and accurate description of your included scope of work. Features or elements depicted in the design that are not specifically included in the approved invoice are not part of the contracted scope, regardless of their appearance in renderings or drawings.
Color and Selection Waiver: The drawings' materials and colors are for conceptual purposes only and may not represent your final selections. The Material and Color Selection Finalization Form takes priority over any shown materials or colors. Please note that actual colors may vary from what is seen on monitors or when printed.
Landscape Waiver: Any landscaping depicted on renderings is for conceptual purposes only. Landscape plan will verify specific plant species and sizes.
Survey Waiver: The design presented is based on the survey information provided by the client. Tree locations, topography, and other site-specific details are subject to verification and may require adjustments to ensure accuracy in implementation. Any discrepancies in the survey data could impact final design elements.
Special Features Waiver: Depictions of special features such as water and fire features are for conceptual purposes only. The velocity and volume of the water or fire will vary.
Engineering Waiver: Structural elements depicted on renderings are for conceptual purposes only. Engineering takes precedence over the size, location, and products used for structural masonry, wood framing, roofing, floors, etc.

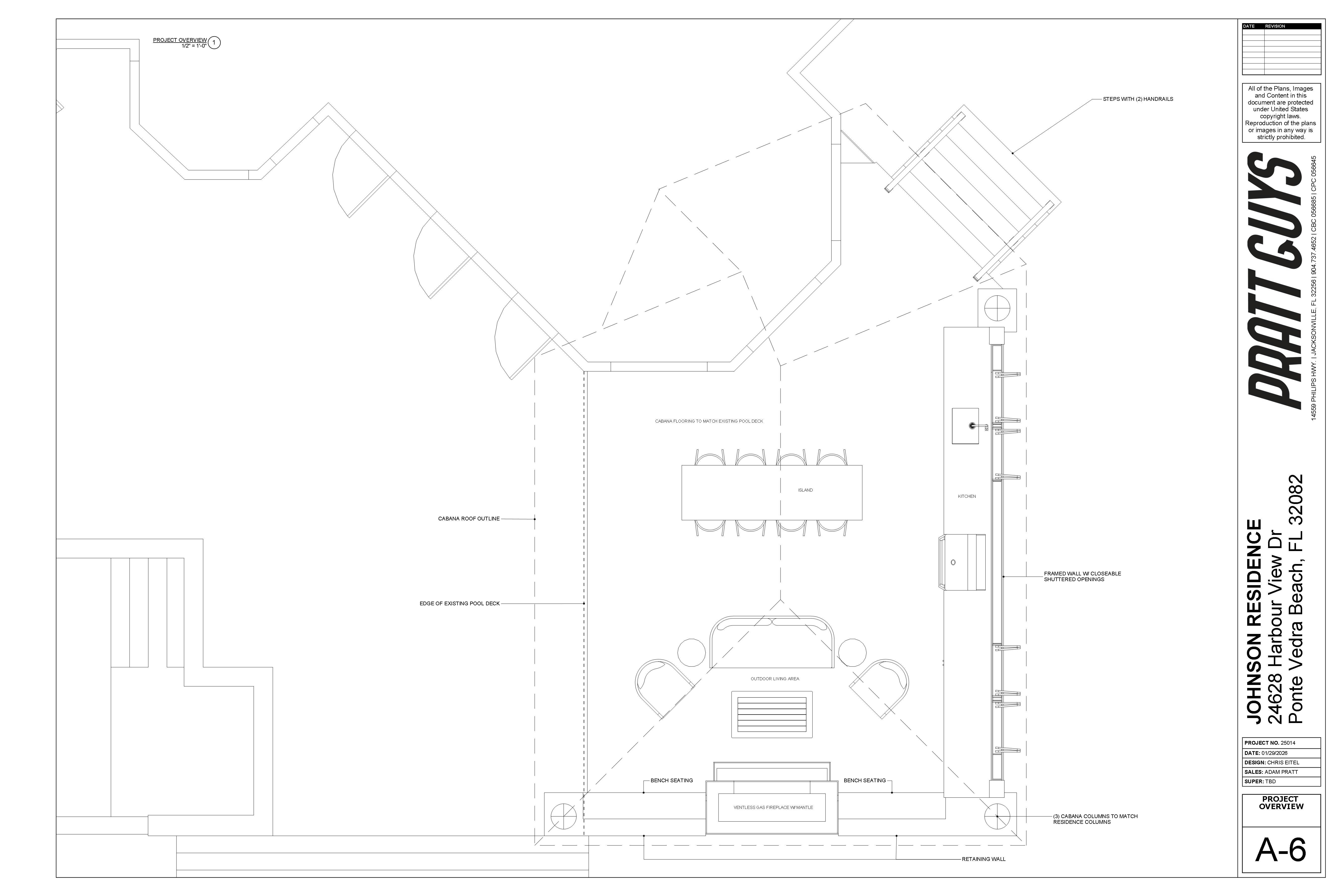
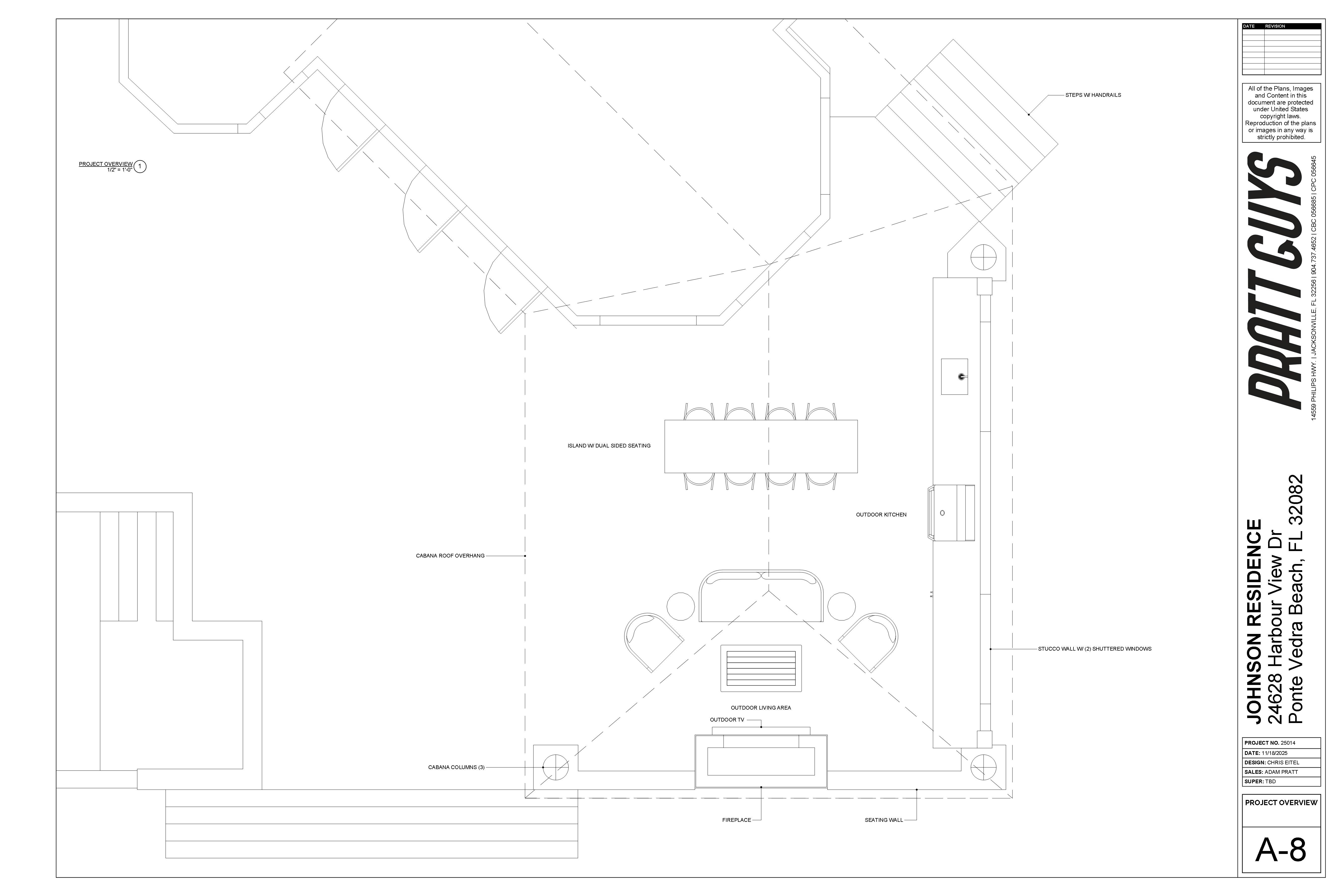
Project Overview

Johnson_Website_06_PROJECT OVERVIEW.jpg

Material Selections

Johnson_Website_07_MATERIAL SELECTIONS.jpg

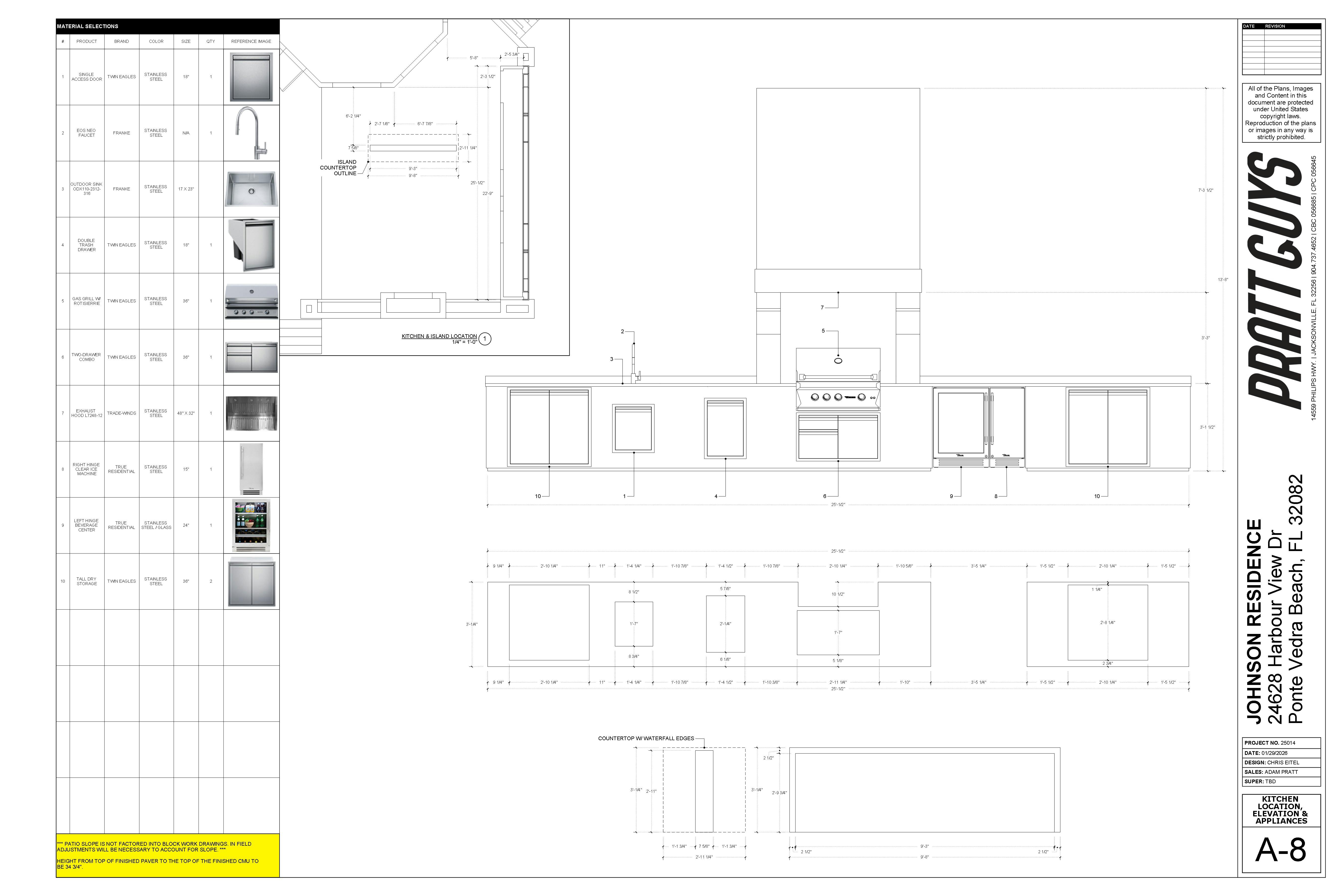
Kitchen Location & Appliances

Johnson_Website_08_KITCHEN LOCATION, ELEVATION & APPLIANCES.jpg

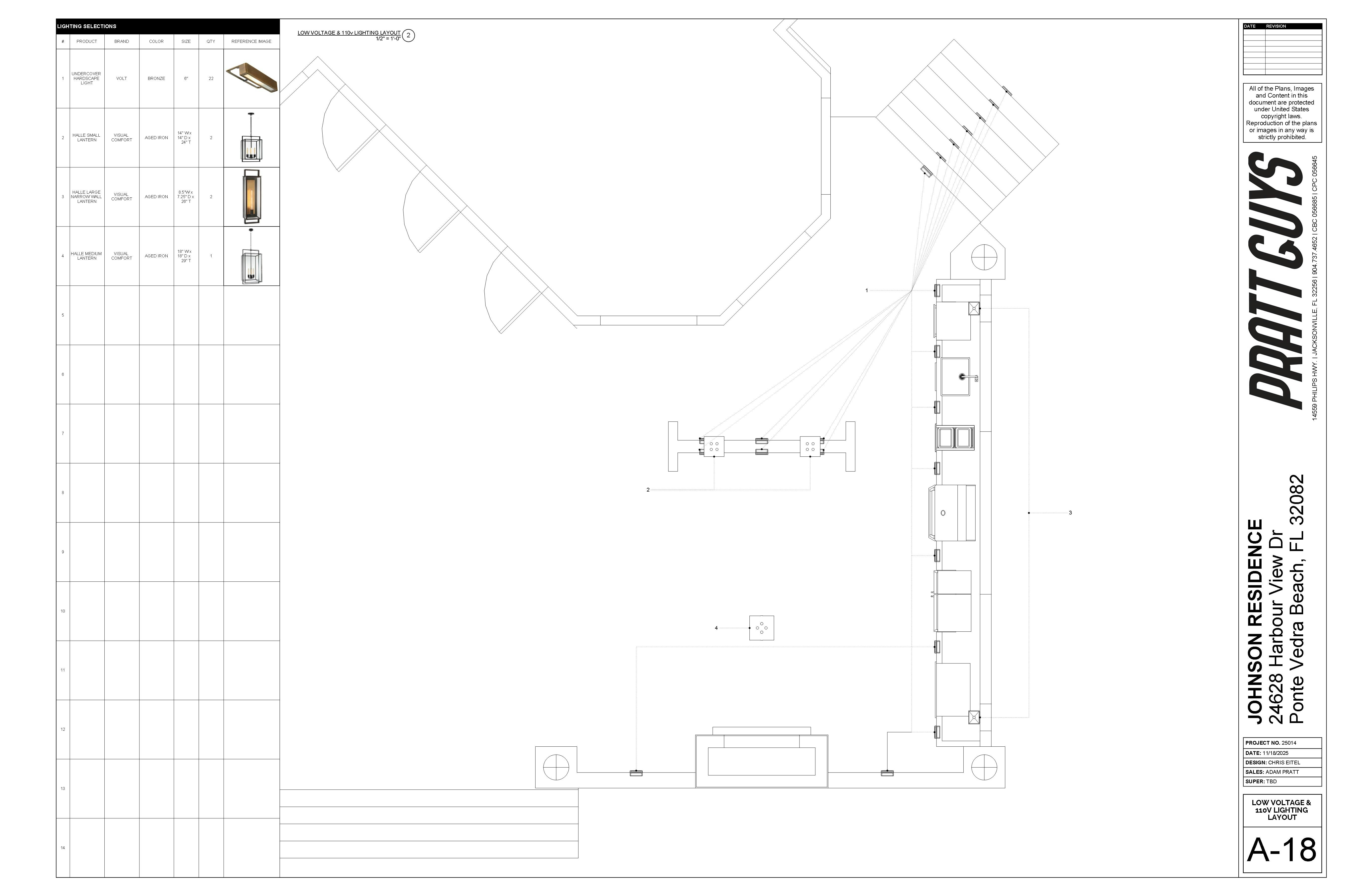
Lighting Layout

Johnson_Website_09_LOW VOLTAGE & 110V LIGHTING LAYOUT.jpg

Renderings

Click preview to enlarge images 🔎

Daytime

Johnson_Day_1 - Photo.jpg
Johnson_Day_2 - Photo.jpg
Johnson_Day_3 - Photo.jpg
Johnson_Day_4 - Photo.jpg
Johnson_Day_5 - Photo.jpg
Johnson_Day_6 - Photo.jpg
Johnson_Day_7 - Photo.jpg
Johnson_Day_8 - Photo.jpg
Johnson_Day_9 - Photo.jpg
Johnson_Day_10 - Photo.jpg
Johnson_Day_11 - Photo.jpg
Johnson_Day_12 - Photo.jpg
Johnson_Day_13 - Photo.jpg
Johnson_Day_14 - Photo.jpg
Johnson_Day_15 - Photo.jpg
Johnson_Day_16 - Photo.jpg
Johnson_Day_18 - Photo.jpg
Johnson_Day_19 - Photo.jpg
Johnson_Day_17 - Photo.jpg
There are no rows in this table

Nighttime

Johnson_Night_1 - Photo.jpg
Johnson_Night_2 - Photo.jpg
Johnson_Night_3 - Photo.jpg
Johnson_Night_4 - Photo.jpg
Johnson_Night_5 - Photo.jpg
Johnson_Night_6 - Photo.jpg
Johnson_Night_7 - Photo.jpg
Johnson_Night_8 - Photo.jpg
Johnson_Night_9 - Photo.jpg
Johnson_Night_10 - Photo.jpg
Johnson_Night_11 - Photo.jpg
Johnson_Night_12 - Photo.jpg
Johnson_Night_13 - Photo.jpg
Johnson_Night_14 - Photo.jpg
Johnson_Night_15 - Photo.jpg
Johnson_Night_16 - Photo.jpg
Johnson_Night_18 - Photo.jpg
Johnson_Night_19 - Photo.jpg
Johnson_Night_17 - Photo.jpg
There are no rows in this table

360 Photos

Click and drag to look around 👀
Want to print your doc?
This is not the way.
Try clicking the ··· in the right corner or using a keyboard shortcut (
CtrlP
) instead.