icon picker
Design Process

Below is the design process for your outdoor design.
We offer this proposal, including all original concepts and designs, with the agreement that you will not share them publicly, on social media, or with outside contractors without the permission of Pratt Guys. We do encourage you to share the site internally with your family and friends and build excitement for your project!

Design Waivers

1️⃣ Color and Selection Waiver: The drawings' materials and colors are for conceptual purposes only and may not represent your final selections. The Material and Color Selection Finalization Form takes priority over any shown materials or colors. Please note that actual colors may vary from what is seen on monitors or when printed.
2️⃣ Landscape Waiver: Any landscaping depicted on renderings is for conceptual purposes only. Client must obtain landscape plan to verify specific plant species and sizes.
3️⃣ Special Features Waiver: Depictions of special features such as water and fire features are for conceptual purposes only. The velocity and volume of the water or fire will vary.
4️⃣ Engineering Waiver: Structural elements depicted on renderings are for conceptual purposes only. Engineering takes precedence over the size, location, and products used for structural masonry, wood framing, roofing, floors, etc.

Feasibility Study

Primary Structure Setbacks:
Front - 20’
Sides - 7.5’
Rear - 10’
Swimming Pool Setbacks: See Below
Max Lot Coverage by Impervious Surface Area: N/A
HOA Restrictions:
Covered patios and screened enclosures should be designed as integral elements of the dwelling, and shall meet all required setbacks. Pan roofs are prohibited.
Pools shall be in-ground and designed in accordance with local governing authorities.
Pool enclosures shall be consistent in design, color and material with architectural theme, with frame color of bronze or dark brown preferred.
The outside edge of any pool wall may not be closer than four (4') feet to a line extended and aligned with the sidewalls of the dwelling unless approved by the ARB.
No screening of pool areas may stand beyond a line extended and aligned with the sidewalls of the dwelling unless approved by the ARB.
Pool screening or any other pool enclosures may not be visible from the street in front of the dwelling unless approved by the ARB.
Any lighting of a pool or other recreation area shall be designed so as to buffer the surrounding residences from the lighting.

Design

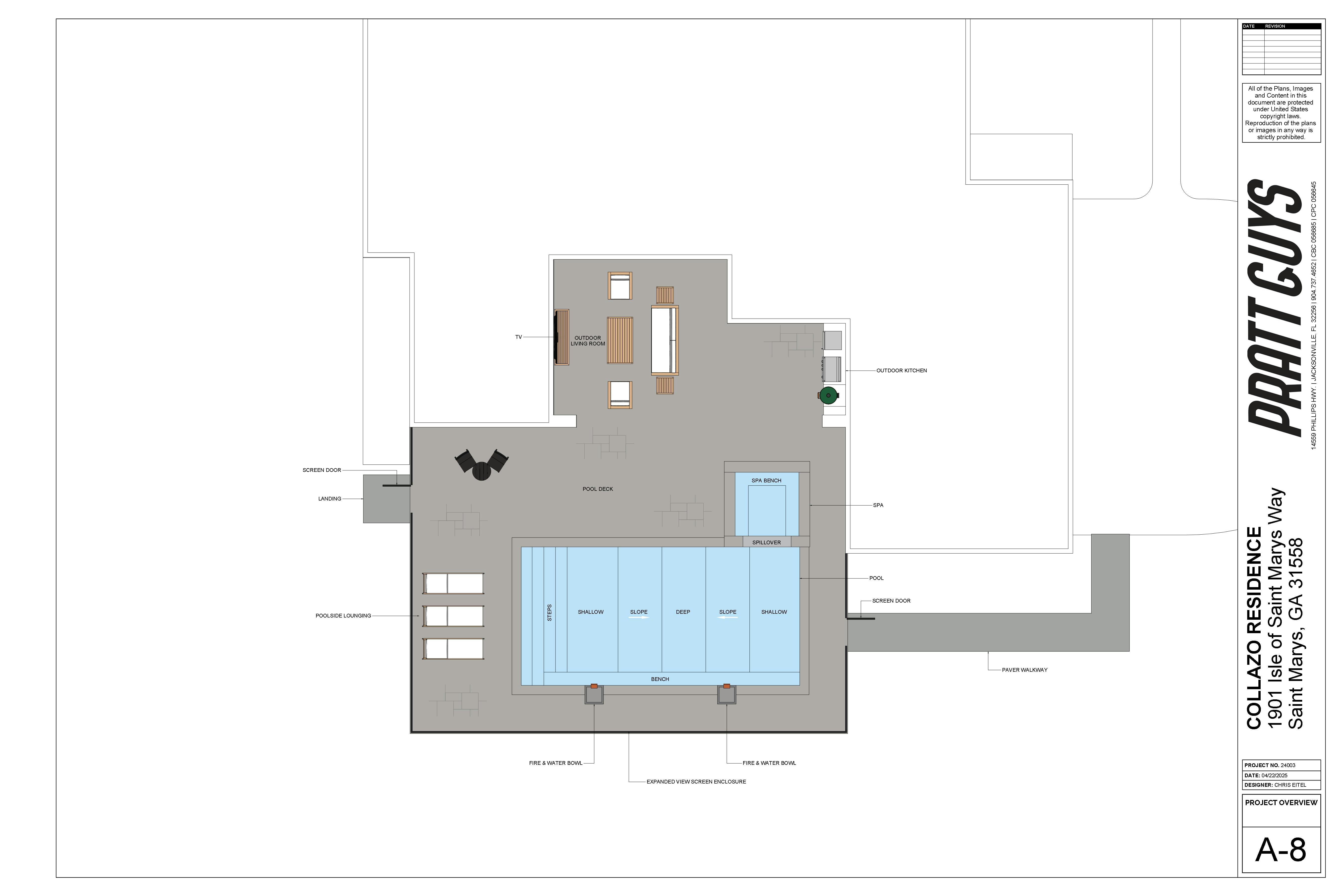
Project Layout

Collazo_Design Guide_08_PROJECT OVERVIEW.jpg

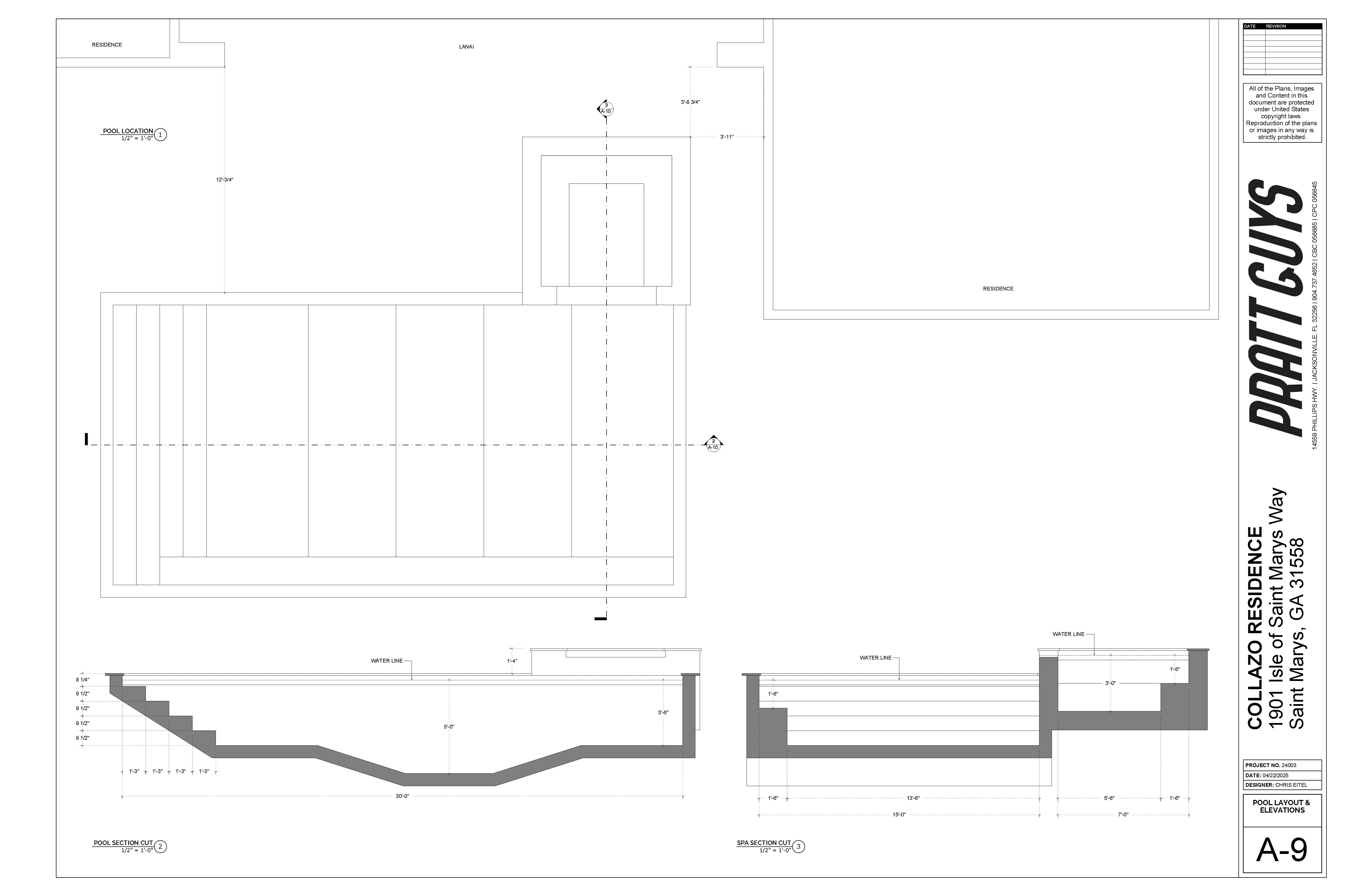
Pool Layout & Cross Sections

Collazo_Design Guide_09_POOL LAYOUT & ELEVATIONS.jpg

Kitchen Elevations

Collazo_Design Guide_10_KITCHEN APPLIANCES & ELEVATION.jpg

Renders

05/06/2025
Collazo_5 - Photo.jpg
Collazo_1 - Photo.jpg
Collazo_2 - Photo.jpg
Collazo_3 - Photo.jpg
Collazo_4 - Photo.jpg
Collazo_9 - Photo.jpg
Collazo_8 - Photo.jpg
Collazo_7 - Photo.jpg
Collazo_6 - Photo.jpg
Collazo_17 - Photo.jpg
Collazo_10 - Photo.jpg
Collazo_11 - Photo.jpg
Collazo_12 - Photo.jpg
Collazo_15 - Photo.jpg
Collazo_14 - Photo.jpg
Collazo_13 - Photo.jpg
Collazo_16 - Photo.jpg
There are no rows in this table

Archived Designs

Option 1

This first option is designed closely to your proposed budget. We added some string lights above the outdoor dining area, but other than those, this design should keep us within the numbers. FYI, the screen enclosure design is conceptual at this point, and would need to be engineered before the final approval.
Option 1
Collazo, Christina_OP2_1 - Photo.jpg
Collazo, Christina_OP2_2 - Photo.jpg
Collazo, Christina_OP2_3 - Photo.jpg
Collazo, Christina_OP2_4 - Photo.jpg
Collazo, Christina_OP2_5 - Photo.jpg
Collazo, Christina_OP2_6 - Photo.jpg
Collazo, Christina_OP2_7 - Photo.jpg
Collazo, Christina_OP2_8 - Photo.jpg
Collazo, Christina_OP2_9 - Photo.jpg
Collazo, Christina_OP2_10 - Photo.jpg
Collazo, Christina_OP2_11 - Photo.jpg
Collazo, Christina_OP2_12 - Photo.jpg
Collazo, Christina_OP2_13 - Photo.jpg
Collazo, Christina_OP2_14 - Photo.jpg
Collazo, Christina_OP2_15 - Photo.jpg
There are no rows in this table

Option 2

This option features several upgrade elements to add to the Mediterranean design theme. Upgrades include:
Turf detail around pool
Bar extension off kitchen w/ added appliances and pendant lighting
Bench seating and accent wall off kitchen
TV wall cabinets and tile
Option 2
Collazo, Christina_OP1_1 - Photo.jpg
Collazo, Christina_OP1_2 - Photo.jpg
Collazo, Christina_OP1_3 - Photo.jpg
Collazo, Christina_OP1_4 - Photo.jpg
Collazo, Christina_OP1_5 - Photo.jpg
Collazo, Christina_OP1_6 - Photo.jpg
Collazo, Christina_OP1_7 - Photo.jpg
Collazo, Christina_OP1_8 - Photo.jpg
Collazo, Christina_OP1_9 - Photo.jpg
Collazo, Christina_OP1_10 - Photo.jpg
Collazo, Christina_OP1_11 - Photo.jpg
Collazo, Christina_OP1_12 - Photo.jpg
Collazo, Christina_OP1_13 - Photo.jpg
Collazo, Christina_OP1_14 - Photo.jpg
Collazo, Christina_OP1_15 - Photo.jpg
There are no rows in this table




Want to print your doc?
This is not the way.
Try clicking the ⋯ next to your doc name or using a keyboard shortcut (
CtrlP
) instead.