Skip to content

Willkommen !

Ich bin Diplom-Ingenieur Architektur mit über 20 Jahren Berufserfahrung, überwiegend in der Ausführungsplanung (LPH 5). In mehr als 70 Projekten habe ich als Angestellter, freier Mitarbeiter und in eigener Regie mitgewirkt. Mein Schwerpunkt liegt auf präziser Detailplanung, Koordination mit Fachingenieuren sowie der Umsetzung komplexer Anforderungen im Bestand.
Erfahrungen in Altbauerneuerung, Denkmalpflege und öffentlichem Bauwesen runden mein Profil ab. Mit professionellem Umgang in CAD, BIM-Erfahrung und einem hohen Verständnis für statische Zusammenhänge arbeite ich effizient, praxisnah und mit hohem gestalterischem Anspruch.


maintenance

an (allen Arten von) Projekten mitgearbeitet:

70+

drafting-compass2

Details entwickelt:

200+

development-skill

Erfahrung gesammelt:

20+ Jahre

building

CAD Erfahrung:

BIM seit 2000


PROJEKTE Auswahl

1910-MAQ-Entwurf Fluchttreppe- _Perspektive 4_21-05-27_001.png
Umbau bestehendes Ausstellungsgebäude zum Sport & Spa Center BA02
KATEGORIE:
Umbau/ Sanierung/ Denkmalpflege
Größe: k.A.
Architekturbüro:
AB Krauser, Saarbrücken
Zeitraum: 2020-2022
ORT: Hanweiler
Art der Mitarbeit:
Anstellung

1910-MAQ-Entwurf Fluchttreppe- _Perspektive 4_21-05-27_001.png
image.png
C-P81_PIK 3_003.png
C-P81_PIK 4_004.png
C-P81_PIK 5_005.png
B-P79.2_ PIK_001.png
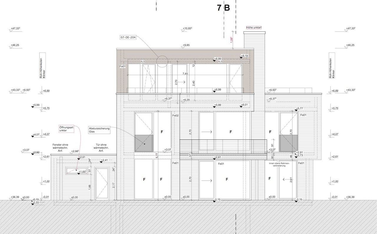
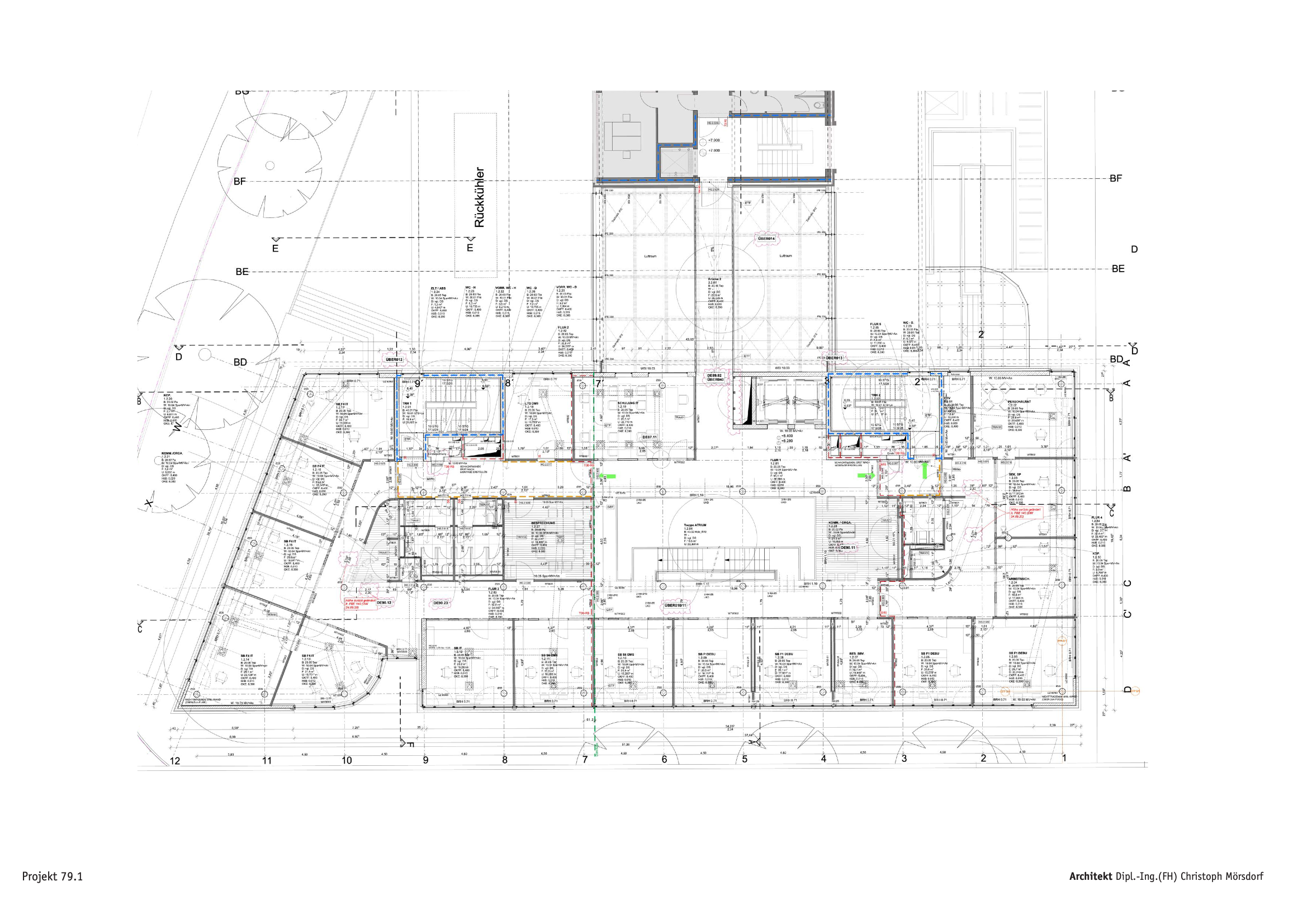
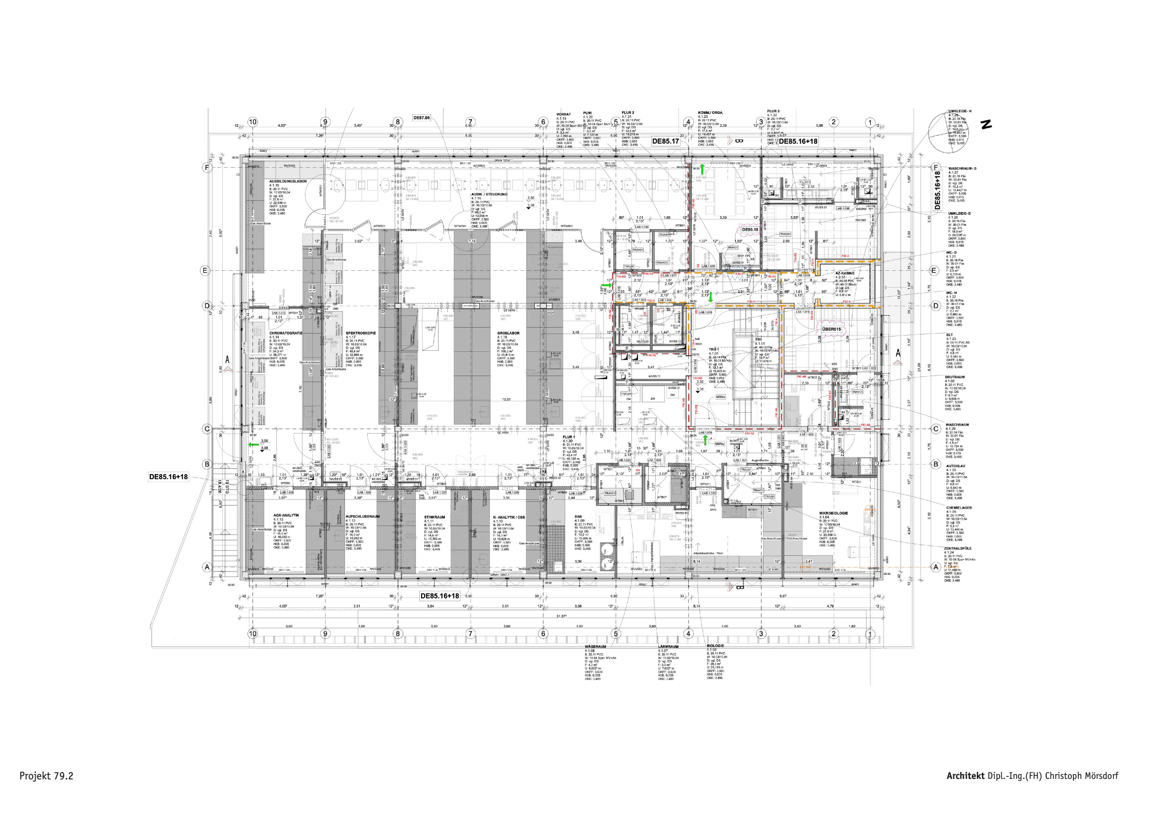
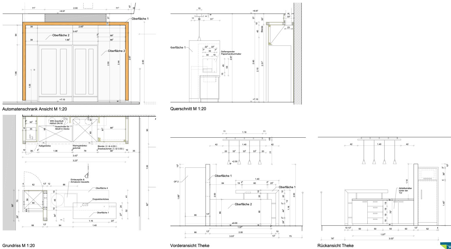
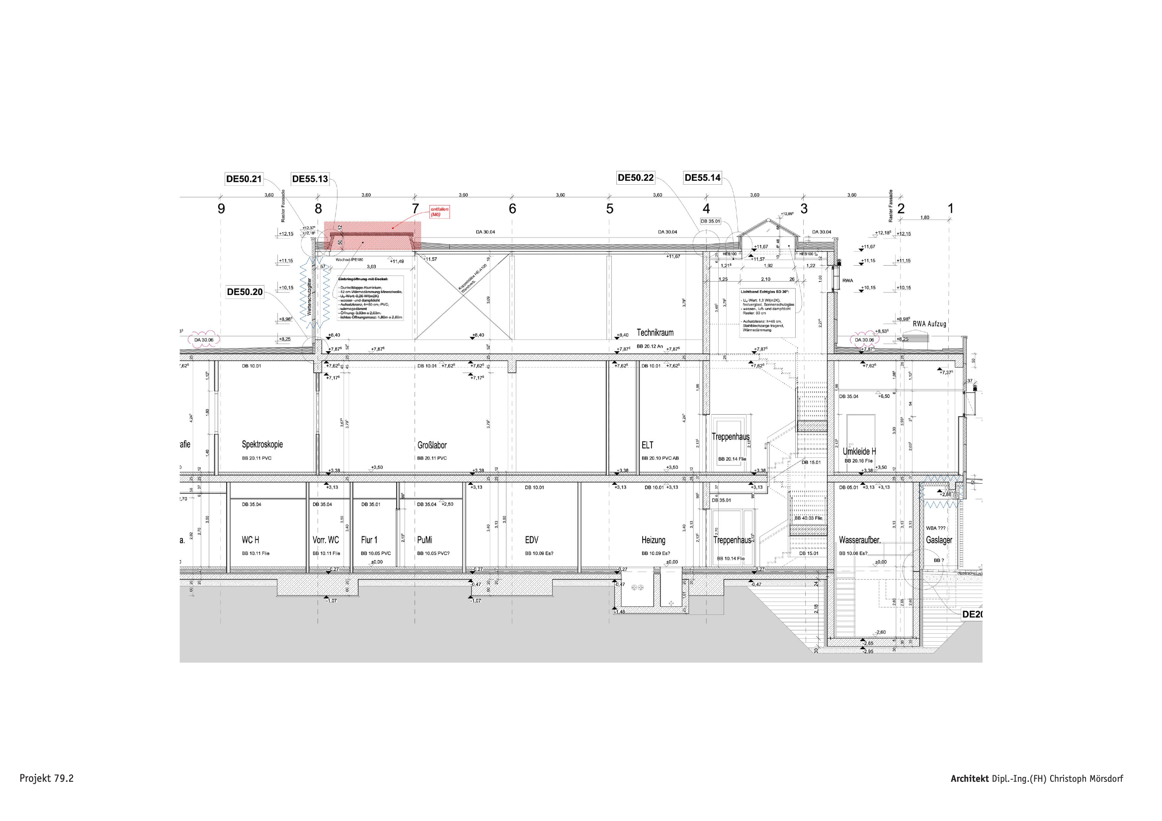
Neubau und Erweiterung eines Verwaltungsgebäudes in Saarbrücken BT 1
KATEGORIE:
Verwaltungsbau
Größe: BGF: 6.500 m2 BRI: 24.000 m3
Architekturbüro:
AB Krauser, Saarbrücken
Zeitraum: 2018-2022
ORT: Saarbrücken
Art der Mitarbeit:
Anstellung

B-P79.2_ PIK 3_003.png
B-P79.2_ PIK 4_004.png
image.png
Neubau und Erweiterung eines Verwaltungsgebäudes in Saarbrücken BT 1
KATEGORIE:
Verwaltungsbau
Größe: BGF: 6.500 m2 BRI: 24.000 m3
Architekturbüro:
AB Krauser, Saarbrücken
Zeitraum: 2018-2022
ORT: Saarbrücken
Art der Mitarbeit:
Anstellung

B-P79.1_M3 digi kleine Größe 2 3_001.png
B-P79.1_M3 digi kleine Größe 2 4_002.png
EVS-HG-1-A-DE50.11-C_Attika Sonnenschutz Regelfall_20-03-26_001.png
73.png
Neubau Tegeler Hafen, 7 Villen mit 49 Wohnungen
KATEGORIE:
Wohnungsbau
Größe: k.A.
Architekturbüro:
Nalbach und Nalbach, Berlin
Zeitraum: 2013-2014
ORT: Berlin
Art der Mitarbeit:
freie Mitarbeit

73.png
image.png
image.png
image.png
Neubau Tilia am Griebnitzsee, 22 Villen, Haus 07
KATEGORIE:
Wohnungsbau
Größe: k.A.
Architekturbüro:
dgi-bauwerk, Berlin
Zeitraum: 2012
ORT: Potsdam
Art der Mitarbeit:
freie Mitarbeit

image.jpeg
image.png
image.jpeg
image.jpeg
image.jpeg
Mini 2.png
Neubau Helmholtz-Zentrum Geesthacht HZG Membranfassade und Aussenanlagen
KATEGORIE:
Forschung und Lehre
Größe: 480 m2 Fassadenfläche
Architekturbüro:
Reiner Becker Architekten, Berlin
Zeitraum: 2011
ORT: Teltow
Art der Mitarbeit:
Anstellung

Mini 2.png
G-P69.01_Membranfassade_ PIK 3_003.png
G-P69.01_Membranfassade_ PIK 4_004.png
G-P69.01_Membranfassade_ PIK 5_005.png
image.jpeg
Visualisierung Innen Neubau betreutes Wohnen
KATEGORIE:
Visualisierungen
Größe: 31.300 m2 BGF, 9.400 m3 BRI
Architekturbüro:
Pötting Architekten, Berlin
Zeitraum: 2010
ORT: Potsdam
Art der Mitarbeit:
freie Mitarbeit

image.jpeg
P-68_ZE00 Visu Innen_Projektinfo kurz 3_003.png
image.jpeg
Neubau betreutes Wohnen "Johanniter Quartier"
KATEGORIE:
Barrierefreies Bauen
Größe: 31.300 m2 BGF, 9.400 m3 BRI
Architekturbüro:
Pötting, Berlin
Zeitraum: 2008-2010
ORT: Potsdam
Art der Mitarbeit:
freie Mitarbeit

image.jpeg
image.jpeg
image.jpeg
image.jpeg
image.jpeg
image.jpeg
image.jpeg
image.jpeg
image.jpeg
Neubau Kindertagesstätte Elgesburger Straße
KATEGORIE:
Bauen für Kinder
Größe: k.A.
Architekturbüro:
Pötting, Berlin
Zeitraum: 2009
ORT: Berlin
Art der Mitarbeit:
freie Mitarbeit

image.jpeg
image.jpeg
image.jpeg
image.jpeg
image.jpeg
image.jpeg
image.jpeg
image.jpeg
image.jpeg
image.jpeg
image.jpeg
image.jpeg
Entwurf Wohnhaus Walter
KATEGORIE:
Wohnungsbau
Größe: k.A.
Architekturbüro:
Eigenes
Zeitraum: 2009
ORT: Holz
Art der Mitarbeit:
eigene

image.jpeg
image.jpeg
image.jpeg
image.jpeg
image.jpeg
image.jpeg
image.jpeg
image.jpeg
image.jpeg
denkmalgerechter Umbau ehemaliges Wertheim-Kaufhaus Rosenthaler Hof
KATEGORIE:
Umbau/ Sanierung/ Denkmalpflege
Größe: 22.000 m2 BGF, 94.000 m3 BRI
Architekturbüro:
KEC, Berlin
Zeitraum: 2007-2008
ORT: Berlin
Art der Mitarbeit:
Anstellung

image.jpeg
image.jpeg
image.jpeg
image.jpeg
image.jpeg
Stadtmöblierung, bestehend aus mehreren Objekten
KATEGORIE:
Städtebau
Größe: k.A.
Architekturbüro:
nps-tchoban-voss, Berlin
Zeitraum: 2006
ORT: St. Petersburg
Art der Mitarbeit:
Anstellung

image.jpeg
image.jpeg
image.jpeg
image.jpeg
Master20080523a2.jpg
Wohnhaus 06-01 Entwurf
KATEGORIE:
Wohnungsbau
Größe: k.A.
Architekturbüro:
Eigenes
Zeitraum: 2005
ORT: n.v.
Art der Mitarbeit:
Visualisierung

Master20080523a2.jpg
43-1.png
etagencafe mit texturen110305A02.png
Gußasphaltarbeiten, Schreiner, Malerarbeiten, Innentüren, Einrichtungen
KATEGORIE:
Verwaltungsbau
Größe: k.A.
Architekturbüro:
Blatt, Saarbrücken
Zeitraum: 2005
ORT: Saarbrücken
Art der Mitarbeit:
freie Mitarbeit

etagencafe%20mit%20texturen110305A02.png
etagencafe mit texturen110305A06.png
Empfang Stein Pers.png
Cosmos Cafeteria Walles28.png
Bild 4.png
svd vorplatz_220405_06_xnconvert.JPG
denkmalgerechter Sanierung Schraubenverdichter Vorplatz WVH
KATEGORIE:
Umbau/ Sanierung/ Denkmalpflege
Größe: k.A.
Architekturbüro:
Huppert & Huppert, Güdingen
Zeitraum: 2000-2004
ORT: Völklingen
Art der Mitarbeit:
Anstellung

A_16er Kopie.png
image.png
Neubau Vordach Trafostation
KATEGORIE:
Umbau/ Sanierung/ Denkmalpflege
Größe: k.A.
Architekturbüro:
Huppert & Huppert, Güdingen
Zeitraum: 2000-2004
ORT: Völklingen
Art der Mitarbeit:
Anstellung

C-P31_M3 2_002.png
C-P31_M3 3_003.png
C-P31_M3_001.png
C-22.JPG
Sanierung Gebläsehalle Windfang WVH
KATEGORIE:
Umbau/ Sanierung/ Denkmalpflege
Größe: k.A.
Architekturbüro:
Huppert & Huppert, Güdingen
Zeitraum: 2000-2004
ORT: Völklingen
Art der Mitarbeit:
Anstellung

C-22.JPG
22-02.png
22-01.png
22-03.png
Bild 11.png
Sanierung Sheds Gebläsehalle WVH
KATEGORIE:
Umbau/ Sanierung/ Denkmalpflege
Größe: k.A.
Architekturbüro:
Huppert & Huppert, Güdingen
Zeitraum: 2000-2004
ORT: Völklingen
Art der Mitarbeit:
Anstellung

C-21_M4 2_002.png
C-21_M4_001.png
18-1.png
Neubau Friseurgroßhandel
KATEGORIE:
Handel und Gewerbe
Größe: k.A.
Architekturbüro:
Huppert & Huppert, Güdingen
Zeitraum: 2000-2004
ORT: Güdingen
Art der Mitarbeit:
Anstellung

18-1.png
18-2.png
image.png
Studienarbeit Baukonstruktion 4: Verbindungssteg
KATEGORIE:
Studienarbeiten
Größe: k.A.
Architekturbüro:
Studium
Zeitraum: 1999
ORT: n.v.
Art der Mitarbeit:
Studium

Bild_45.png
Bild_46.png
Bild_47.png
Bild_48.png
Bild_49.png
Bild_50.png






Kontakt


Architekt
Dipl.-Ing. (FH) Christoph Mörsdorf
Grubenstraße 20 66787 Wadgassen
Mobil: 0170 474 26 26 Email:

ich.png














IMPRESSUM

Adresse:

Architekt Dipl.-Ing. (FH) Christoph Mörsdorf
Grubenstraße 20 66787 Wadgassen
Email: architektchmoersdorf[at]icloud.com

Kammer:

Architektenkammer des Saarlandes Neumarkt 11, 66117 Saarbrücken
Gesetzliche Berufsbezeichnung: Diese Berufsbezeichnung ist in Deutschland geschützt und darf nur von Personen geführt werden, die in die Architektenliste einer Kammer eingetragen sind.
Eintragungsnummer: ​BA 1204

Haftungsausschluss

1. Inhalt

Der Betreiber übernimmt keinerlei Gewähr für die Aktualität, Korrektheit, Vollständigkeit oder Qualität der bereitgestellten Informationen. Haftungsansprüche gegen den Betreiber, die sich auf Schäden materieller oder ideeller Art beziehen, welche durch die Nutzung oder Nichtnutzung der angebotenen Informationen bzw. durch die Nutzung fehlerhafter oder unvollständiger Informationen verursacht wurden, sind grundsätzlich ausgeschlossen, sofern seitens des Betreibers kein nachweislich vorsätzliches oder grob fahrlässiges Verschulden vorliegt. Der Betreiber behält sich ausdrücklich vor, Teile der Seiten oder den gesamten Inhalt ohne gesonderte Ankündigung zu verändern, zu ergänzen, zu löschen oder die Veröffentlichung zeitweise oder endgültig einzustellen.
2. Verweise und Links
Trotz sorgfältiger inhaltlicher Kontrolle übernimmt der Betreiber keine Haftung für die Inhalte externer Links. Für den Inhalt der verlinkten Seiten sind ausschließlich deren Betreiber verantwortlich.
3. Urheber- und Kennzeichenrecht Alle Texte, Bilder und sonstigen Materialien in dieser Publikation unterliegen den geltenden Urheberrechtsbestimmungen und dürfen nicht ohne schriftliche Genehmigung der Verfasser bzw. Fotografen verwendet werden.
4. Datenschutz Die Nutzung der im Rahmen des Impressums oder vergleichbarer Angaben veröffentlichten Kontaktdaten wie Postanschriften, Telefon- und Faxnummern sowie E-Mail-Adressen durch Dritte zur Übersendung von nicht ausdrücklich angeforderten Informationen ist nicht gestattet. Rechtliche Schritte gegen die Versender sogenannter „Spam-Mails“ bei Verstößen gegen dieses Verbot sind ausdrücklich vorbehalten.







Want to print your doc?
This is not the way.
Try clicking the ⋯ next to your doc name or using a keyboard shortcut (
CtrlP
) instead.