Skip to content
Share
Explore

TỔNG HỢP 22+ Mặt bằng bố trí nhà phố 2 tầng thịnh hành nhất

Mặt bằng bố trí nhà phố 2 tầng, trong phối cảnh mặt tiền thường ảnh hưởng tới giá trị thẩm mỹ của ngôi nhà thì tính chất quyết định đến công năng sử dụng có đầy đủ tiện nghi, thông thoáng và rộng rãi. Cho nên, các gia chủ cần phải phân chia mặt bằng, bố trí công năng sử dụng sao cho khoa học nhất.
Trong bài viết này, ATZ LUXURY xin tổng hợp những mặt bằng bố trí nhà phố 2 tầng ưa chuộng nhất hiện nay. Từ đó, giúp quý bạn đọc tìm được ý tưởng thiết kế độc đáo cho ngôi nhà mơ ước của mình.

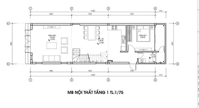
Bản vẽ nhà phố 2 tầng 5x20m có gara

Tầng 1 được thiết kế gồm khoảng sân trước để xe, tiếp đến là phòng khách, phòng ăn, khu vực tiểu cảnh, phòng ngủ và WC chung bố trí góc nhà. Ngoài ra, mặt bằng bố trí công năng tầng 1 còn được thiết kế khu vực tiểu cảnh, sân vườn giữa phòng ăn và phòng ngủ giúp phòng ăn thông thoáng, lưu thông không khí tốt nhất.
image.png
Bản vẽ bố trí nhà phố 2 tầng có công năng sử dụng tầng 2 gồm phòng thờ, 2 phòng ngủ, phòng sinh hoạt chung, phòng giặt phơi. Nhà vệ sinh chung bố trí gần phòng sinh hoạt động nhằm mang lại sự tiện lợi khi sinh hoạt. Mọi khu vực được bố trí hài hòa và đảm bảo tiêu chí thông thoáng, rộng rãi.
image.png

Bản vẽ mặt bằng bố trí công năng mẫu nhà phố 2 tầng 5x25m

Mặt bằng bố trí công năng sử dụng tầng 1 của mẫu nhà 2 tầng 5x25m gồm sảnh, phòng khách khang trang, phòng ăn rộng rãi và phòng ngủ thu gọn. Nhà vệ sinh chung được bố trí góc nhà để tiện lợi nhất cho mọi thành viên trong gia đình sử dụng.
image.png
Đi lên tầng 2, đối diện khu vực cầu thang lên tầng chính là phòng thờ gia tiên. Không gian phòng thờ có hành lang và khu vực giếng trời kết hợp với tiểu cảnh. Tiếp đến là 2 phòng ngủ rộng rãi hướng ra ban công và cuối nhà đầy đủ tiện nghi. Còn nhà vệ sinh bố trí cạnh cầu thang đảm bảo sự tiện lợi khi sinh hoạt.
image.png

Bản vẽ mặt bằng bố trí công năng nhà phố 2 tầng mái Thái

Tầng 1 được thiết kế gara oto đối diện phòng khách sang trọng, tiếp đến là phòng ăn, phòng ngủ, sân sau và nhà vệ sinh. Tại khu vực cầu thang lên tầng còn được bố trí khu vực tiêu cảnh sống động, giúp con người tận hưởng bầu không khí mát lành từ thiên nhiên.
image.png
Ở tầng 2 của mặt bằng bố trí nhà phố 2 tầng mái Thái được bố trí sân thượng đối diện phòng ngủ. Tiếp đến là phòng thờ, phòng ngủ, phòng đọc sách cạnh khu vực cầu thang lên tầng, phòng giặt phơi và 2 nhà vệ sinh được bố trí góc nhà.
image.png

Mặt bằng bố trí công năng mẫu nhà ống 2 tầng 1 tum

Tầng 1 của mẫu nhà ống 2 tầng 1 tum được thiết kế khoảng sân trước rộng rãi để phương tiện đi lại, tiếp đến là phòng khách, phòng ăn, phòng ngủ, nhà vệ sinh và khu vực sân sau. Phòng ăn và phòng phòng khách thiết kế liên thông với nhau để mang lại độ thông thoáng, mát mẻ cho khu vực nấu nướng.
image.png
Tầng 2 mặt bằng bố trí nhà phố 2 tầng các khu vực được bố trí khoa học, hợp lý nhằm đáp ứng mọi công năng sử dụng cũng như mang lại giấc ngủ tuyệt vời nhất cho gia chủ. Với bản vẽ thiết kế gồm phòng ngủ master, phòng học và phòng ngủ cho con cái. Trong mỗi phòng ngủ được thiết kế nhà vệ sinh khép kín tạo thành không gian tiện nghi.
image.png
Các nhà kiến trúc sư đã thiết kế thêm tầng tum để mang lại độ thông thoáng, mát mẻ và giúp con người gần gũi với thiên nhiên hơn. Bản vẽ công năng sử dụng tầng tum gồm sân thượng, phòng thờ, kho, sân phơi. Sân phơi bố trí cuối nhà có để máy giặt sấy để tiện lợi nhất cho việc giặt giũ.
image.png
Có thể bạn quan tâm:

Thiết kế mặt bằng bố trí nhà phố 2 tầng 1 tum có gara

Tầng 1 của mẫu nhà phố 2 tầng 1 tum có gara được bố trí không gian để phương tiện đi lại rộng rãi, phòng khách, phòng ngủ, nhà vệ sinh chung và phòng ăn. Sau nhà là khu vực tiểu cảnh để điều hòa bầu không khí trong ngôi nhà thêm mát mẻ, trong lành hơn.
image.png
Tầng 2 được thiết kế 2 phòng ngủ liền nhau tính từ sảnh thông tầng hướng ra cuối nhà, giữa 2 nhà vệ sinh là phòng vệ sinh chung. Còn phòng sinh hoạt chung được bố trí hướng ra ban công để đón ánh sáng và gió trời hiệu quả.
image.png
Mặt bằng bố trí nhà phố 2 tầng 1 tum còn được thiết kế thêm tầng lửng với sân thượng, phòng thờ gia tiên, kho, và khu vực giặt phơi. Mọi khu vực được thiết kế cân đối với nhau và đảm bảo tiêu chí rộng rãi và thông thoáng.
image.png

Mẫu mặt bằng nhà phố 2 tầng 4 phòng ngủ mặt tiền 6m

Bản vẽ thiết kế mẫu nhà phố 2 tầng 4 phòng ngủ mặt tiền 6m luôn ưu tiêu tiêu chí tiện nghi, hiện đại và thông thoáng. Tầng 1 được bố trí khoảng sân trước rộng rãi, phòng khách liền kề phòng ăn, phòng ngủ và nhà vệ sinh. Sau phòng ăn là khoảng sân sau để phơi quần áo.
image.png
Mặt bằng bố trí nhà phố 2 tầng, trên tầng 2 được bố trí 3 phòng ngủ, phòng sinh hoạt chung, phòng thờ và 2 nhà vệ sinh. Phòng ngủ master hướng ra ban công với nhà vệ sinh khép kín nhằm đảm bảo sự tiện lợi nhất trong quá trình sinh hoạt.
image.png
#atzlulxury #mauthietkenha2tangcogara #thietkenha2tangcogara
Công Ty Cổ Phần Thương Mại, Kiến Trúc Nội Thất ATZ
Sđt: 0915.178.091
Email: info.atzluxury@gmail.com






Want to print your doc?
This is not the way.
Try clicking the ··· in the right corner or using a keyboard shortcut (
CtrlP
) instead.