Skip to content
adn
Share
Explore

TKVP HOA NGÂN - ADN

ADN

ADN - LẦN 1.pdf
6.3 MB

ƯU ĐIỂM

hưnghứnghungThể hiện được concept riêng, với xu hướng kết hợp cây xanh và ánh sáng tại khu vườn trung tâm tạo điểm nhấn khác biệt cho toàn bộ tòa nhà, tạo được các luồng không khí - cảm hứng - sự thoải mái ch thay đổi nhiều so với yêu cầu thiết kế.

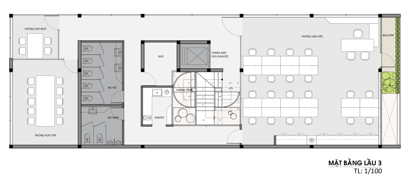
Ví dụ: ở Tầng 3, do khu vườn trung tâm thông tầng nên lại phát sinh thêm Phòng kho + Pantry + Phòng họp nhỏ không cần thiết, trong khi Văn phòng chỉ có 23 chỗ ngồi (so với 40-50 chỗ ngồi như Yêu cầu thiết kế)
image.png
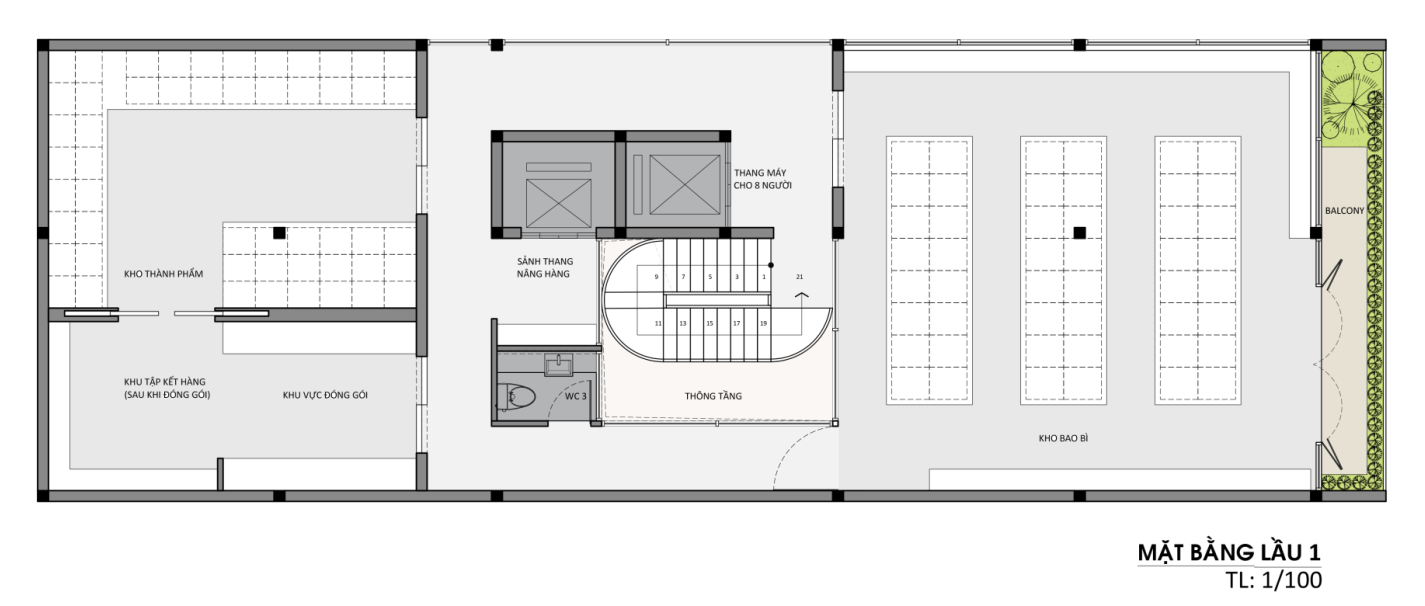
Tương tự ở Tầng trệt và tầng 1, kho cần ưu tiên diện tích lớn nhưng trong bản vẽ đang bị cắt xén khá nhiều.
image.png
image.png
Bản thiết kế có concept riêng nhưng thiếu nhiều chi tiết ảnh hưởng đến tính thực tiễn
Chưa thực sự tối ưu tốt không gian diện tích tòa nhà dẫn đến tình trạng “thừa nhưng thiếu”


Want to print your doc?
This is not the way.
Try clicking the ··· in the right corner or using a keyboard shortcut (
CtrlP
) instead.