Skip to content
Share
Explore

Bamboo Plaza Venue Report

Prepared for Julia Stoschek Foundation by Digital Counsel & FISHKO Inc.

1st Floor Layout


jsf-la-layout-1st-floor.png

1A - Grocery Store

Approximate Size: 15,000 sq. ft.
Features: Largest 1st Floor Space, Restrooms, Back-of-House Rooms
Work Required: Floor Covering, Leak Fix, Additional Power from Restaurant Above
1A.png

348s.jpg
Screenshot 2025-01-27 at 11.31.52 AM.png

1B - Unit 102

Approximate Size: 550 sq. ft.
Features: Glass Courtyard Frontage
1b.png

Screenshot 2025-01-27 at 2.53.28 PM.png
Screenshot 2025-01-27 at 2.53.21 PM.png

1C - Unit 105

Approximate Size: 425 sq. ft.
Features: Glass Courtyard Frontage, Across from Toy Store
1c.png

Screenshot 2025-01-27 at 3.00.02 PM.png

1D - AMP 116

Approximate Size: 600 sq. ft.
Features: First Storefront from Hill Street, Existing Asian Architecture & Elements
1d.png

Screenshot 2025-01-27 at 3.03.46 PM.png
Screenshot 2025-01-27 at 3.03.33 PM.png

1E - Han San

Approximate Size: 650 sq. ft.
Features: Glass Courtyard Frontage, Break Room, Small Kitchen, Restroom
Work Required: Walls to Cover Utility Boxes & Other Infrastructure
1e.png

Screenshot 2025-01-27 at 3.07.29 PM.png
Screenshot 2025-01-27 at 3.07.20 PM.png

1F - Hill Street Units

Approximate Size: 1,750 sq. ft.
Features: Direct Street Access
1f.png

Screenshot 2025-01-27 at 3.14.12 PM.png
Screenshot 2025-01-27 at 3.14.05 PM.png


1st Floor Occupied Units

Adult Day Health Center - no visible activity
Toy Store - busy
Smaller Unit - storage
1occupied.png

Screenshot 2025-01-27 at 3.20.28 PM.png
Screenshot 2025-01-27 at 3.20.36 PM.png


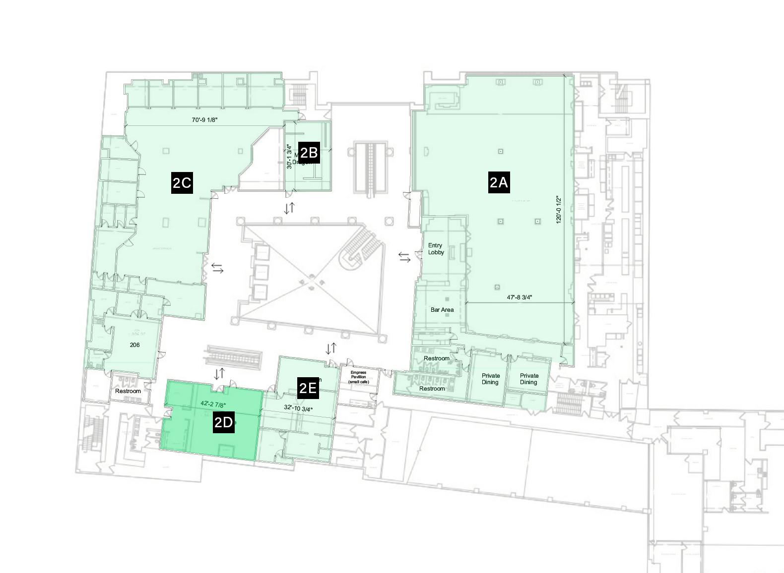
2nd Floor Layout

jsf-la-layout-12nd-floor.png

2A - Dim Sum Restaurant

Approximate Size: 15,000 sq. ft
Features: Carpeted, Hostess Stand, Lobby, Bar, Private Dining Rooms, Kitchen, Commercial 480v 3-Phase Electrical
Work Required: Leak Fix
2a.png

Screenshot 2025-01-27 at 6.38.36 PM.png
Screenshot 2025-01-27 at 6.38.58 PM.png

2B - Art Framing Store

Approximate Size: 15,000 sq. ft
Features: Adjacent to Escalators

2b.png
Screenshot 2025-01-27 at 6.47.37 PM.png
Screenshot 2025-01-27 at 6.47.45 PM.png

2C - Shoper’s Lane + Unit 206

Approximate Size: 10,000 sq. ft
Features: Glass Frontage, Market Stalls

2c.png

Screenshot 2025-01-27 at 6.54.09 PM.png
Screenshot 2025-01-27 at 6.50.47 PM.png
Screenshot 2025-01-27 at 6.51.07 PM.png
Screenshot 2025-01-27 at 6.53.13 PM.png
Screenshot 2025-01-27 at 6.54.24 PM.png

2D - Neotype

Approximate Size: 1,350 sq. ft
Features: Current Walls Can Be Removed
2d.png
Screenshot 2025-01-27 at 6.56.50 PM.png
Screenshot 2025-01-27 at 6.57.13 PM.png

2E - Robocon

Approximate Size: 1,500 sq. ft
Features: Built Out Office Space

2e.png


Screenshot 2025-01-27 at 6.59.35 PM.png
Screenshot 2025-01-27 at 6.59.55 PM.png

Parking Area

Screenshot 2025-01-27 at 7.01.48 PM.png

Screenshot 2025-01-27 at 7.02.32 PM.png
Screenshot 2025-01-27 at 7.02.46 PM.png


Want to print your doc?
This is not the way.
Try clicking the ··· in the right corner or using a keyboard shortcut (
CtrlP
) instead.