Skip to content
Share
Explore

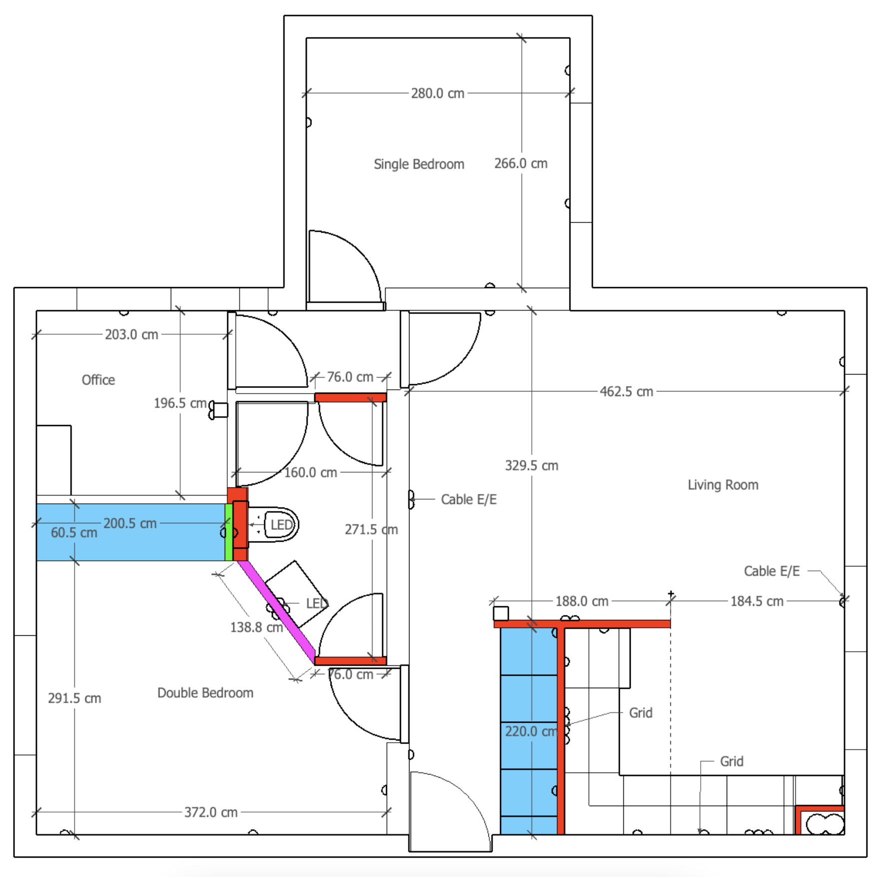
Electrical Circuits & Points

40A Kitchen
32A Hall + Living Room + Single Bedroom
32A Double Bedroom + Bathroom + Office
32A Cooker
16A TV Wall
6A Lighting + Doorbell
6A Boiler
Points
Row
Room
Type
Qty
Notes
Cross-doc icon
Kitchen
Kitchen
50A DP Cooker Switch
1
Cross-doc icon
Kitchen
Kitchen
Dual Cooker Connection Unit
1
Cross-doc icon
Kitchen
Kitchen
Grid Switch
2
MW, FF
Cross-doc icon
Kitchen
Kitchen
Connection Unit
1
Boiler
Cross-doc icon
Kitchen
Kitchen
Power Socket
8
CH, DW, MW, FF, Boiler Cupboard + 3 Worktop
Cross-doc icon
Kitchen
Kitchen
Central Light
1
Cross-doc icon
Kitchen
Kitchen
Light Switch
2
1G Central, 2G Downlights
Cross-doc icon
Kitchen
Kitchen
Downlighter Junction Box
2
Cross-doc icon
TV Wall
TV Wall
Power Socket
3
Cross-doc icon
TV Wall
TV Wall
Cable Entry/Exit
1
Cross-doc icon
Hall
Hall
Central Light
1
Cross-doc icon
Hall
Hall
PIR Switch
1
Cross-doc icon
Hall
Hall
Power Socket
3
Cross-doc icon
Hall
Hall
Extractor Fan
1
Cross-doc icon
Living Room
Living Room
Central Light
1
Cross-doc icon
Living Room
Living Room
Light Switch
1
Cross-doc icon
Living Room
Living Room
Power Socket
7
Cross-doc icon
Living Room
Living Room
Cable Entry/Exit
3
Cross-doc icon
Single Bedroom
Single Bedroom
Central Light
1
Cross-doc icon
Single Bedroom
Single Bedroom
Light Switch
1
Cross-doc icon
Single Bedroom
Single Bedroom
Power Socket
4
Cross-doc icon
Single Bedroom
Single Bedroom
Cable Entry/Exit
1
Cross-doc icon
Double Bedroom
Double Bedroom
Central Light
1
Cross-doc icon
Double Bedroom
Double Bedroom
Light Switch
1
Cross-doc icon
Double Bedroom
Double Bedroom
Cable Entry/Exit
1
Cross-doc icon
Double Bedroom
Double Bedroom
Power Socket
6
Cross-doc icon
Double Bedroom
Double Bedroom
Power Socket EU
1
Cross-doc icon
Double Bedroom
Double Bedroom
Reading Light
2
Cross-doc icon
Office
Office
Central Light
1
Cross-doc icon
Office
Office
Light Switch
1
Cross-doc icon
Office
Office
Power Socket
4
Cross-doc icon
Office
Office
Cable Entry/Exit
1
Cross-doc icon
Bathroom
Bathroom
Central Light
1
Cross-doc icon
Bathroom
Bathroom
Light Switch
1
Cross-doc icon
Bathroom
Bathroom
LED Strip
1
Cross-doc icon
Bathroom
Bathroom
Mirror Light
1
Cross-doc icon
Bathroom
Bathroom
Shaver Socket
1
Cross-doc icon
Bathroom
Bathroom
Extractor Fan
1
Cross-doc icon
Bathroom
Bathroom
Magnetic Lock
2
There are no rows in this table

Proposed Plan.png
Stud walls are coloured.
Kitchen Plan.png
Kitchen Render.png
Bathroom Render.png
Want to print your doc?
This is not the way.
Try clicking the ··· in the right corner or using a keyboard shortcut (
CtrlP
) instead.